热搜焦点:福州闽侯锦绣时代售楼处电话→首页热搜福州闽侯锦绣时代24小时电话→最新房价→楼盘百科详情→营销中心最新发布@福州闽侯锦绣时代售楼处中心
扫描到手机,新闻随时看
扫一扫,用手机看文章
更加方便分享给朋友
福州市锦绣时代售楼部电话-售楼处400热线电话在线预约,感谢您的配合!
福州锦绣时代售楼中心电话: 400-8383-583☎24小时预约热线
福州闽侯锦绣时代营销中心电话: 400-8383-583☎营销中心已认证
闽侯甘蔗锦绣时代售楼处电话: 400-8383-583☎开发商已认证
【锦绣时代售楼中心&样板房,欢迎预约品鉴】
➢ ➢本项目采用预约制,过来营销中心参观样板间请记得提前拨打开发商楼盘售楼处400热线电话在线预约,感谢您的配合
2025年,在保留高得房率、南北双空中花园等因素外,福建四建的第二款四代宅产品——锦绣时代再次出击。
锦绣时代效果图
把学区、超级会所、酒店级车库等改善元素全部拉满,周期红利,叠加福州住建新规——锦绣时代通过坚持对四代宅改进和探索,给到了市场关于“好房子”的创新答卷。
福州最强四代宅产品,来了!
01
周期红利+住建新规,四代宅再升级
粗略统计,福州已入市近20多个四代宅产品。四代宅的两个核心卖点,代表的意义却不同。
计算得房率,针对的是对总价敏感的人群。南北花园等实际的空间体验的提升,则是针对讲究品质,对舒适度敏感的人。
2025年,叠加住建新规,层高、架空层等好房子参数变化,锦绣时代得以成为当下福州最强四代宅代表。
福建四建在四代宅江湖确定地位的首款产品——锦绣外滩,170席,面积段在143-316㎡。
引爆闽侯改善市场,备受追捧的同时,户型少,面积段门槛有点高,不少购房者表示没买到。
这一次,锦绣时代的起步面积稍稍下探到123㎡,不少首次置业的群体可以直接选择四代宅,一步到位。
锦绣时代效果图
而更难得的是,锦绣时代再次对四代宅进行迭代,更能应对生活的不同场景。
不少四代宅,本身得房率就已经超过了100%,看上去好像空间宽敞。但往往是一个相对局促的四房,叠加一个面积超大的露台。
这样设计,只是从数字层面满足了购房者的爽感,实际在生活中,并不实用。
此次锦绣时代入市的主推产品——123㎡起步,总价在150万左右。此外,还有140+的产品——奇数层:145㎡/147㎡(东端头),偶数层143㎡。
产品瞄准的一个痛点,就是市场上四代宅面积虽大,但四房局促。
锦绣时代深知,好的四代宅,除了得房率让人咋舌外,改造性和趣味性也要大大增加。
锦绣时代效果图
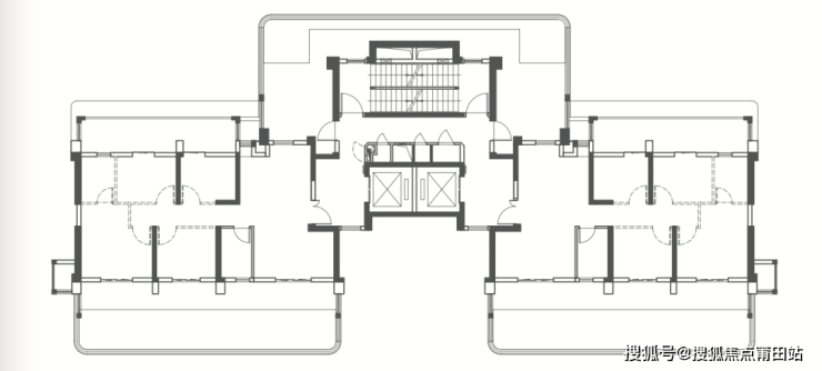
1 赠送的电梯厅空间叠加空中花园,使用率高
作为2025年的新盘,锦绣时代1梯1户设置,自带独立的电梯前厅。电梯前厅更可以和空中花园做到直接连接。
这就使得可以形成双动线入户——更有仪式感的归家方式。动静分离,使得生活与待客互不干扰。
锦绣时代无论奇、偶层,独立电梯前厅都与空中花园直接相连,可以规划出曲径通幽的园林效果。
2 与锦绣外滩类似,锦绣时代依旧保持着福州绝版的南北双空中花园的设计,客厅、餐厨空间、主卧三个家庭核心空间与空中庭院相连,日常社交和生活场景得以个性化释放。
传统的四代宅一味把户外空间做大,只注重得房率,锦绣时代的户型很好地让户外空间与室内空间获得了平衡。
一个空中花园与客餐厨的动区无界共融,另外一个空中花园则与位于私区的卧室相连。
空中花园的入户动线与厨房空间紧密关联,室内外双餐厅的生活场景就可以打造。
2025年,因为相关规范的改变,进深更长,面积更大的空中花园得以出现。
锦绣时代奇数层户型设计过程稿
以奇数层为例,北向空中花园带来的的大开窗面积争取到更多自然采光,可以避免不少传统四代宅房间内采光度得问题。

锦绣时代偶数层户型设计过程稿
以偶数层143㎡的产品为例,南向空中花园串联起了客厅和两个卧室,这就使得购房者可以根据自身需求,选择是否对客厅和卧室单独或者同时扩容,空间使用效率更上一层楼。
因为主卧本身就带有双台盆,步入式衣帽间,独立卫浴,尺度已经很阔绰。
如果业主追求极致改善,更可以形成市面上少见的自带露台的“度假酒店式的主卧套房”。
3 2025年,设备平台作为四代宅的优化空间,进入购房者的视野。
锦绣时代无论是奇数层还是偶数层,都规划了空中设备平台,提升得房率之外,也使得整个房间的线路布局更加从容。
此外,奇数层的东侧产品为147㎡,比西侧产品多了2㎡。

锦绣时代奇数层户型设计过程稿
东侧147㎡产品的东北侧,有一个视野绝佳,三面悬空的小露台。结构相对独立,采光和通风都不错,360度的视野,很适合花点小心思精心装修点缀。
4 户型具有成长性
锦绣时代对四代宅产品力打造可谓不遗余力。
143/145/147㎡产品,在公区一体化,可以组成大客厅、大厨房、大餐区。而在卧室区域,购房者也可以根据自身需求,在三房与四房之间切换。

锦绣时代偶数层户型设计过程稿
此外,部分锦绣时代的产品力更爆棚,甚至包括巨幕环绕露台以及类别墅风格。限于篇幅有限,感兴趣的购房者可以在十一国庆期间售楼部开放后,实地了解。
02
配套齐全,四代宅竟成学区房
高得房率和户型创新之外,锦绣时代也在酝酿产品的升级。回归核心板块和深度高改的市场趋势下,高端新盘成为不少品牌开发商的主战场。
在福州楼市全面卷服务、卷小区品质,卷配套的当下,锦绣时代也选择再次对自己挑战。
锦绣时代隔壁是闽侯首邑实验学校,这是闽侯县城第一所九年一贯制学校,教室配备国标护眼灯,以及支持手摇升降的桌椅,硬件条件不错。
作为福州首个自带学区的属性的四代宅,项目价值进一步拉满。
福州市锦绣时代售楼部电话-售楼处400热线电话在线预约,感谢您的配合!
福州锦绣时代售楼中心电话: 400-8383-583☎24小时预约热线
福州闽侯锦绣时代营销中心电话: 400-8383-583☎营销中心已认证
闽侯甘蔗锦绣时代售楼处电话: 400-8383-583☎开发商已认证
【锦绣时代售楼中心&样板房,欢迎预约品鉴】
➢ ➢本项目采用预约制,过来营销中心参观样板间请记得提前拨打开发商楼盘售楼处400热线电话在线预约,感谢您的配合
声明:本文由入驻焦点开放平台的作者撰写,除焦点官方账号外,观点仅代表作者本人,不代表焦点立场。
