@大东海中央府售楼处/户型/楼盘详情【认证】大东海中央府售楼中心24小时热线【最新】售楼处电话
扫描到手机,新闻随时看
扫一扫,用手机看文章
更加方便分享给朋友
✅大东海中央府
✅大东海中央府电话TEL:400-8383-583【售楼中心】
大东海中央府售楼部24小时电话☎:400-8383-583【售楼处已认证】
✅开发商温馨提示:网上售楼中心〢欢迎来电咨询〢安全通话隐藏真实号码〢
✅◆来电咨询最新售楼处地址,专属置业顾问详解,请提前联系售楼处销售进行预约登记。
免责声明:将文章内容综合来源于网络、只作分享,版权归原作者所有!!如有侵权,请联系我们,我们第一时间处理

【SOHO项目基本信息】
【面积】35-59平方
【产权】40 商住SOHO
【总层高】10层,四梯34户,
【层高】4.5米,公摊21%
【总户数】322
【交房时间】2022年九月
【总价】60-110万
【单价】1.58-1.8万
【商铺项目基本信息】
【面积】50-160平方
【层高】4.5米,8.7米
【产权】40年
【总户数】133间
【交房时间】2022年9月
【总价】50-160平方
【均价】3.7万
建面约42-160㎡,价格2.8w-4.8w,四大名铺——黄金地铁铺、繁华社区铺、人气学校铺、吸金景区铺,铺铺临街,面向四大消费人群(地铁人流、社区业主、学校师生、景区游客),聚集鼎盛人气,坐享财富聚宝盆。

【区位配套】
错过东二环,买下一个东二环
泰禾广场入驻,东二环成为城市商业门户封面。商圈带动板块发展,如今三大综合体落户赋能南二环,成就“下一个东二环”。
崛起南二环,寸金地段往后难觅
板块势能释放,各大品牌开发商抢滩进驻,南二环秉持地段优势和板块红利,以比肩“下一个东二环”之势成为新兴崛起的烫金热土。
正地铁口,出行从容自在
距地铁1号线葫芦阵站仅约150米,与2/4/6号线换乘通达全城。以深圳为例,地铁口租金几乎是2公里外租金的两倍以上。
百万商圈,繁华城芯钱景可期
2公里内覆盖则徐万达广场(年底开业)、世界城综合体(在建中)、SM城市综合体(规划中)3大综合体,吃喝玩乐购一站尽享。
四所学校,家长陪读首选近邻仓山实验小学(郭宅校区)、后坂中学、福六中、盖山中学,坐享数万学生、教师、家长三类固定消费人群。
CBD办公区,海量白领汇聚近邻东部办公区&5730亩江南CBD,公务员、白领等城市菁英人口汇聚于此,形成极具凝聚力的消费磁场,人口红利优势显著。
醇熟社区,20000+社区人气200亩人文综合住区自带20000+固定社区人气,周边十余个高端社区环绕,高净值圈层汇聚,宜居易租,居住更舒适。

灵动空间,功能随心百变
建面约35-59㎡百变复式金寓,低总价低首付,不限购不限贷。4.5米层高,买一层送一层,宜商宜租宜自用,多种用途潜力无限。
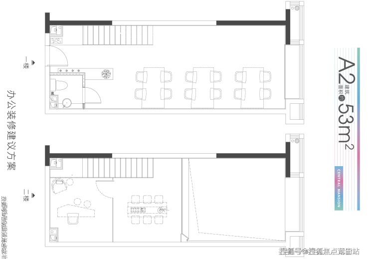
【SOHO户型鉴赏】

【投资价值】
小投入大未来,抢入二环投等舱
更低门槛首次支付19万起当二环房东,明年9月交房即收租,市场同类型公寓租金3000+元,低门槛轻松拥有二环芯资产。稳健资产福州零门槛落户,5年目标引入人才100万,居住需求不断增加,电商、高科技大势所趋,创业需求旺盛。公寓在手,财富稳健攀升。可观回报建面约41㎡总价73万起百变复式金寓租金约3000+元,自有资金年化回报率10%,投资回报秒杀其他理财。

【多元业态】
4.5米层高,满足多元业态

福州大东海中央府
✅大东海中央府电话TEL:400-8383-583【售楼中心】
大东海中央府售楼部24小时电话☎:400-8383-583【售楼处已认证】
✅开发商温馨提示:网上售楼中心〢欢迎来电咨询〢安全通话隐藏真实号码〢
✅◆来电咨询最新售楼处地址,专属置业顾问详解,请提前联系售楼处销售进行预约登记。
3月9日下午,十四届全国人大三次会议举行记者会,民政部、人力资源和社会保障部、住房和城乡建设部、国家卫健委四位负责人就相关问题回答中外记者提问。
住房和城乡建设部部长倪虹表示,将实施一批惠民生、促发展、防风险的更新项目,其中在民生项目,将着力抓三件事:
§ 一是把2000年以前建成的城市老旧小区都要纳入城市更新的改造范围,因地制宜实施改造,也鼓励地方探索居民自主更新改造老旧住宅。
§ 二是城中村改造,现在范围已经扩大到全国地级及以上城市,要在去年新增100万套基础上,再继续扩大改造规模。
§ 三是大力推进完整社区建设,重点是聚焦“一老一小”,完善无障碍适老化配套设施,政府托育服务设施、儿童活动场地。
据了解,为打造更加宜居的城市住区,福州持续推进2000年底以前建成的老旧小区及2000年至2005年间建成、基础设施不完善的老旧小区改造工作。
数据显示,2012年至2016年,福州市五城区共改造完成859个2000年以前建成的老旧小区,2017-2020年共实施改造提升541个老旧小区。
图为台江区苍霞新城改造后实景图
根据《福州市老旧小区改造实施方案(2021-2025年)》,“十四五”期间福州全市计划改造老旧小区1000个以上,重点以2000年底前建成的小区为主,利用三年时间完成改造2000年底前建成的老旧小区,两年时间完成改造2000年底前建成的已改造但未实现雨污分流的老旧小区。
整治后的老旧小区变得“绿起来、亮起来、畅通起来、和谐起来”,居住环境品质全面提升,房屋保值增值,政府投资直接转化成居民受益,居民获得感不断增强,社会效益十分明显,获得了社会各界的广泛认可。
声明:本文由入驻焦点开放平台的作者撰写,除焦点官方账号外,观点仅代表作者本人,不代表焦点立场。
