@左海烟山江翠楼盘电话・楼盘详情・左海烟山江翠售楼处地址・最新房源・左海烟山江翠最新价格・最新动态・左海烟山江翠最新进展等详情
扫描到手机,新闻随时看
扫一扫,用手机看文章
更加方便分享给朋友
福州左海烟山江翠
左海烟山江翠售楼处楼盘详情介绍:包含左海烟山江翠售楼处电话:400-8383-583、地址、户型图、小区图片、区位优势、交通、周边商业配套等楼盘详细资料;
左海烟山江翠售楼处电话:400-8383-583【已认证】
更详细房源信息和最新折扣价格,请拨打左海烟山江翠售楼处电话:400-8383-583,一对一专属置业顾问会为您详细介绍楼盘。
欢迎来电咨询楼盘、看房请提前预约,电话预约看房享受专属内部优惠折上折,享有惊喜家电赠送
售楼处直销,不会收取任何费用,请提前一小时预约看房,预约享额外售楼处专属内部团购优惠
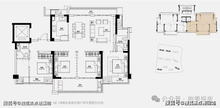
130平:四房两厅两卫,一梯一户,四开间朝南,大面宽设计,目前布局采取北向看江设计,不过楼栋位于最南侧,还是唯一两栋17层的小高层,可以和南面的两房做空间交换,整体得房率不错。
从户型来看,四房设计,过道浪费较多,两个卫生间都位于一侧,动线过长,客餐厅横厅设计,南北不通透。
整体来说,在这个面积段做到四房设计,加上独梯南北双阳台产品,客源匹配度还是不错。

150平:四房两厅三卫,一梯一户,这个面积占比最多,户型与130类似,由于层高变多,公摊更大,实际升级并不多,多了一个暗卫,有两栋位于北侧高层有一定江景资源,整体来说相对平庸。

150平:四房两厅三卫,一梯一户,唯一没有采取北向观景设计的户型,与目前主流布局类似,多做的一个小书房和客厅联合,整体的尺寸不错,餐厅独立设计,也做到南北通透,缺点就是左侧卫生间是暗卫,这个户型的通病,北侧卧室偏小。

170平:四房两厅三卫,一梯一户,150平观景产品的升级,最大特色就是双主卧设计,特别是右侧主卧搭配书房,功能性拉满,要说不足,还是一个暗卫,还是无法南北通透,虽然是横厅设计,不过在这个面积段,公区的面积还是稍显一般。

左海烟山江翠:曾用名(湾上公馆),地处:仓山区横江路与东尤溪洲路交叉口西南侧,上渡建材市场边。
项目占地约40亩,规划10栋18-23高层住宅,合计403套住宅,没有落地一楼,主打建面:130、150、170平,全部2T2板楼设计,其中150平的比例高达60%多。
02
PART
楼盘土拍
2022年9月29日,左海以底价10.72亿元竞得宗地2022-43号上渡地块,成交楼面价16777元/㎡,销售指导均价35000元/㎡。土地面积:39.94亩,容积率:2.4,建筑限高:70米。
分析:2年前的土拍,左海兜底了上渡的纯商地块,虽然当时已经大部分是国企兜底的情况,不过对于这幅纯商而言,最终这样的结局,还是出乎不少意外。
从地块2年多时间,才开始在市场宣传就可以发现,本土国企操盘的进度。
对比当时同天拿地的项目:天珺、远山拾里、云璟未来、麓里、誉湖、华玺等。
这个地块也是上市最慢的一幅纯商。
从地块属性来看,面积适中还比较方正,限高70米、容积率2.4,指标算不错,周边供应不多,部分有江景加持,可以说外围尚可。
最终兜底的的楼面价1.67W,给出主力150平的刚改产品,定位也相对精准。
对于房企左海,这3年也是兜底大户,从成交地块来看,非公租、商务地块,合计17幅、169亿,面积高达877亩。
对于这些地块,大部分都是纯商属性,而且从操盘来看,目前超过一半都未上市,唯一接近清盘的是高比例安商房左海华玺和袖珍盘左海璞宸。
从地块属性来看,房企受关注的也就烟山江翠、隐翠公馆、以及金山小的纯商。
整体来说大部分地块都不算出色,可以说这个国企后续的操盘数量极多,压力非常大。
03
PART
🏡✅福州 左海烟山江翠
左海烟山江翠售楼处电话:400-8383-583【已认证】
更详细房源信息和最新折扣价格,请拨打左海烟山江翠售楼处电话:400-8383-583,一对一专属置业顾问会为您详细介绍楼盘。
声明:本文由入驻焦点开放平台的作者撰写,除焦点官方账号外,观点仅代表作者本人,不代表焦点立场。
