首页@阳光城象屿登云湖最新售楼处电话(营销中心)-阳光城象屿登云湖售楼处电话---地址-最新房价-阳光城象屿登云湖售楼部电话【营销中心认证】
扫描到手机,新闻随时看
扫一扫,用手机看文章
更加方便分享给朋友
阳光城象屿登云湖售楼处电话:400-8556-400【售楼处认证】
福州阳光城象屿登云湖售楼处电话:400-8556-400【营销中心】

阳光城象屿登云湖楼盘详情400-8556-400(楼盘详情,售楼处电话,售楼处地址,房价,价格,地址,户型图,交通,周边配套,备案价,最新房源,最新价格,最新动态,最新进展等详情)
阳光城象屿登云湖由福建登云房地产开发有限公司承建开发,开盘时间:2021-06-25,物业类型为:别墅,住宅,装修状况:毛坯,楼盘产权年限: 联排70年,双拼70年,叠拼70年 ,楼盘地址:晋安登云,物业公司:福州登云湖物业服务有限公司,物业费:住宅:洋房3.98元/平;别墅:联排7.8元/平,叠拼5.8元/平,如果您对阳光城象屿登云湖项目感兴趣想了解,请咨询拨打我们售楼处联系电话。
约2500亩 国际人文生态住区 【建筑结构】:汲取同步世界城市的现代简约建筑语言,融合福州传统意蕴,熔炼与现代人审美相契合的建筑风格。央公,国家一级资质物业。秉持“阳光服务,尊贵生活”的服务理念,专为登云湖项目定制一套“便捷、细致、及时”的“云服务”体系。
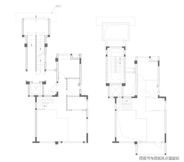
阳光城象屿登云湖户型推荐
4房2厅3卫
户型解读阳光城象屿登云湖格局方正,整体面宽与进深比例合适,便于空间改造和家具摆放。采光性极佳,即使是阴天室内也不会很暗。居室布局合理,通风良好,动静分离,兼顾到了业主的私密性。卫生间干湿分离,保证沐浴之外的区域干燥,保持居家清爽洁净。公摊面积相对合理,符合住宅公摊正常范围,满足日常居住需求。


阳光城象屿登云湖周边配套
公交: 园中圣泉寺(170路); 东山村(170路;通学专线2); 园中村(80路;86路)
教育: 登云山庄幼儿园(福建省福州市晋安区登云路388-1号); 福建省农业科学院茶叶研究所(福建省福州市晋安区新店镇埔垱路104号); 福建省农业科学院作物研究所(福建省福州市晋安区西凤路103号)
医院: 福建省儿童医院(福建省福州市晋安区横屿路966号); 晋安区岳峰镇东站社区卫生服务站(福建省福州市晋安区上垱路223号); 儿科内科(福州市晋安区新店外环路国际公园香槟公馆)
银行: 福州农商银行24小时自助银行(园中新苑东北)(福建省福州市晋安区园中村117-10); 中国建设银行24小时自助银行(福州象峰支行)(福建省福州市晋安区东埔园路三盛国际公园拉菲公馆);
美食: 朱记餐饮(福建省福州市晋安区岳峰镇北三环路168号鹤林家居建材广场); 恩顶乡村时光(福州市晋安区鼓宦公路西50米); 榕岸饭店(福州市晋安区鹤林路祥屿佳园-A区)
休闲: 登云山庄(登云路388-2号); 涧田草莓园(福州市晋安区涧山巷与西园路交叉路口往北约90米); 鑫麟茶语(福建省福州市晋安区新店镇山北路三盛国际公园贝肯郡427号)
购物: 振邦康防水工程-登云路店(福建省福州市晋安区登云路388号); 三晋玛钢构槽(福州市晋安区北三环路鹤林家居建材广场7座11号); 南亚锚牌(福建省福州市晋安区北三环路鹤林家居建材市场6号楼107号)
阳光城象屿登云湖售楼处电话:400-8556-400【售楼处认证】
福州阳光城象屿登云湖售楼处电话:400-8556-400【营销中心】
中国人民银行授权全国银行间同业拆借中心公布,2025年8月20日贷款市场报价利率(LPR)为:1年期LPR为3.0%,5年期以上LPR为3.5%。以上LPR在下一次发布LPR之前有效。

道交通谋划多年
峰福铁路市域化改造已开展前期工作
根据2022年6月福州市政府批复的《福州城市轨道交通线网规划(2021年修编)》方案,初步规划布局6条市域线。
其中,市域S5线规划起迄点为闽侯竹岐至闽清城关,全长32.7公里,车站7座,平均站间距5.45公里,功能为福州城区至闽清市域放射线。


不过随后,关于该市域S5线规划疑似搁置,改为利用现有峰福铁路,通过市域化改造,优化提升福州至闽清市域轨道交通。
据了解,峰福铁路西起横峰站、东至福州东站,全长408公里,是江西和福建之间的省际铁路。随着昌福铁路、合福高铁建成通车,加之线路频繁受水害等地质灾害影响,铁路部门大幅减少峰福铁路客运列车对数,目前已基本无客运列车开行。

2023年,福州市开展“福州都市圈开行市域列车发展路径研究”,并考察了福平铁路福州至长乐东段、福马铁路福州至马尾段、峰福铁路福州至闽侯段。专家指出,上述线路具备开行市域列车的能力,建议分阶段实施,推动建成市域铁路开行列车示范工程,努力打造“轨道上的福州”。
声明:本文由入驻焦点开放平台的作者撰写,除焦点官方账号外,观点仅代表作者本人,不代表焦点立场。
