【榕发北源云筑】2025年最新房价-榕发北源云筑售楼部电话号码多少?-楼盘解析丨户型、价格丨榕发北源云筑最新优惠折扣
扫描到手机,新闻随时看
扫一扫,用手机看文章
更加方便分享给朋友
榕发北源云筑【已认证】
⭐福州榕发北源云筑销售中心电话:400-8383-583【已认证】⭐⭐⭐
⭐榕发北源云筑售楼处电话:400-8383-583【已认证】⭐⭐⭐
⭐福州市榕发北源云筑营销中心电话:400-8383-583【已认证】⭐⭐⭐
⭐榕发北源云筑营销中心电话:400-8383-583【已认证】⭐⭐⭐
4008383583
榕发北源云筑在售户型图丨项目介绍丨最新房源丨周边配套丨详细解答〢
⭐◆开发商营销中心诚挚邀请,一键预约,尊享内部折扣!匠心独运的精品项目,恭候您的品鉴与选择。⭐
✅ 过来参观样板房烦请记得提前来电预约!
✅ 为您安排楼盘现场销售全程接待并讲解,给您更贴心的看房体验!
二环内 · 白湖亭万达旁 · 国企耕心筑作
产权年限: 70年
开发商: 福建榕发置地有限公司
楼盘户型: 3种户型,建面:76-114㎡ 4室2厅2卫 (建面:114)
装修情况: 毛坯
交房时间: 2025年12月
绿化率: 30%
容积率: 2
当期户数: 1433户
物业费: 3元/m²/月

榕发北源云筑总用地面积约76417㎡,可售住宅总建筑面积约15万㎡,分为A、B两个地块开发,容积率2.0,绿地率30%,共规划29栋7-16层的小高层和高层住宅。 【A地块】:总用地面积59671㎡,规划23栋住宅,总高7-16层;以中线为分割线,目前开发的是东侧的A2地块,规划13栋住宅,总高7-16层。 【B地块】:总用地面积16746㎡,规划6栋总高15-16层的高层住宅。

国企榕发 致敬城市脊梁
福建榕发置地有限公司作为集团下属集开发施工一体化的子公司,依托集团平台优势,聚焦房地产开发主业,以市场为先导,以质量为根本,主动作为、锐意创新、精益求精,延续“榕发”匠心品质,致力打造高标准、高品质、高颜值的精品建筑,为建设现代化国际城市贡献力量。

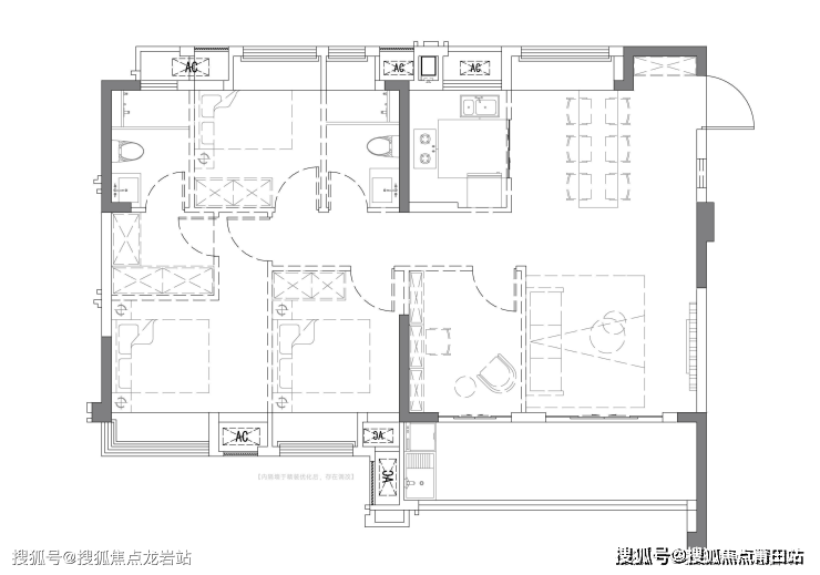
【户型赏析】
76平米:三房两厅一卫,位于连廊中户,三开间朝南,主流布局,北面存在隐私问题,虽然做了三房,不过卧室偏小,这个面积也是目前板块比较极致的刚需产品,对于地缘刚需的吸引力不错。

89平米:三房两厅两卫,连廊中户和端头,三开间朝南,动静分离的主流布局,主要硬伤在于主卫对着床,亮点在于89平米做大面宽的阳台,部分89平还是端头,也算少见。

114平米:四房两厅两卫,位于连廊端头,四开间朝南,大面宽布局,客餐厅南北通透,在连廊端头里面算是比较亮眼。(2)114平米:四房两厅两卫,位于2T2板楼的内端,户型图是手绘,四开间朝南,独梯独户
周边配套:地铁:白湖亭、三叉街地铁站-C口、三叉街、葫芦阵地铁站-B口、三叉街地铁站-B口、葫芦阵、地铁葫芦阵、葫芦阵地铁站-C口、白湖亭地铁站-A口、葫芦阵地铁站-A口
⭐榕发北源云筑销售中心电话:400-8383-583【已认证】⭐⭐⭐
⭐榕发北源云筑售楼处电话:400-8383-583【已认证】⭐⭐⭐
⭐榕发北源云筑营销中心电话:400-8383-583【已认证】⭐⭐⭐
⭐榕发北源云筑营销中心电话:400-8383-583【已认证】⭐⭐⭐
榕发北源云筑在售户型图丨项目介绍丨最新房源丨周边配套丨详细解答〢
⭐◆开发商营销中心诚挚邀请,一键预约,尊享内部折扣!匠心独运的精品项目,恭候您的品鉴与选择。⭐
✅ 过来参观样板房烦请记得提前来电预约!
闽江学院学生公寓项目建设内容包括学生公寓及其配套设施,建成后将与公司已交付使用的图书馆新馆、艺术教学楼形成功能互补,整体提升校园硬件水平,优化校园学习环境。优化闽都高等教育学府基础设施。
闽江学院新建4栋学生公寓楼
2025年8月8日,闽侯县自然资源和规划局发布“关于闽江学院总平面规划调整方案及新建学生公寓建筑设计方案的公示”。
现建设单位因校区发展建设,向我局申请在北校门广场东北侧新建学生公寓,该学生公寓由1#、2#、3#、4#学生公寓组成;该组团学生公寓总建筑面积为25890.80平方米,其中地上建筑面积23274.22平方米,地下建筑面积2616.58平方米。
经审核,调整内容符合该片区控制性详细规划、《福州市国土空间规划管理技术规定》(试行)及有关法律、法规、标准和规范等要求。
根据公布建筑单体经济技术指标,四栋学生公寓具体规划:
1#学生公寓(本科生),规划12F,高度49.5米,总建筑面积7204.37平米;
2#学生公寓(本科生)、规划6F,高度27.9米,总建筑面积3528.8平米;
3#学生公寓(研究生),规划7F,高度约28.8M,总建筑面积3837.57平米;
4#学生公寓(研究生),规划15F,高度约54.4米,总建筑面积8703.48平米。
根据中标公告显示,闽江学院学生公寓项目总建筑面积25890.80㎡(其中计容建筑面积23274.22㎡,不计容建筑面积2616.58㎡)。
新建4栋学生公寓(1#、2#、3#、4#学生公寓),其中1#学生公寓地上12层,地下1层,建筑高度44.65米;2#学生公寓地上6层,建筑高度23.05米;3#学生公寓地上7层,建筑高度为23.95米;4#学生公寓地上15层,地下1层,建筑高度为49.55米。
声明:本文由入驻焦点开放平台的作者撰写,除焦点官方账号外,观点仅代表作者本人,不代表焦点立场。
