长沙招商揽阅售楼处电话丨售楼处位置丨首页网站丨交房时间丨2025招商揽阅最新动态丨长沙招商揽阅24小时电话百度百科-楼盘测评-长沙房天下
扫描到手机,新闻随时看
扫一扫,用手机看文章
更加方便分享给朋友
长沙招商揽阅
长沙市招商揽阅售楼处电话☎:400-8556-400✔✔
招商揽阅售楼部电话:400-85-56-400【已认证】
4008556400
如有问题欢迎来电咨询,来电即可享受买房优惠! 预约来电尊享购房优惠,可预约案场内部销售人员,专业一对一热情服务,让您用专业眼光去买房。 楼盘项目全面介绍,本电话为开发商提供线上售楼处电话,楼盘项目全面介绍(包含楼盘简介,楼盘积分,房价,价格,楼盘地址,户型图,交通规划,备案价,项目配套,楼盘详情,售楼处电话,最新消息,最新详情,周边配套,最新进展等详情咨询)
长沙招商揽阅售楼处电话☎:400-8556-400✔✔

长沙住宅场景时代,开辟全场景理想生活样本

开发企业:招商蛇口
产品类型:高层住宅
建筑风格:现代雅奢
0
1
核心推荐理由

01 全景度假,把公园搬到家的楼下
4600㎡主入口景观前场,结合水景与树阵的穿插,熟悉与烟火交织,让回家变成慢慢松弛的归途,充满仪式感。双层景观体系,成就世界顶级酒店虹夕诺雅野奢感。
02 灰空间革命,献给家外的生活场景
3600㎡度假公园、3000㎡架空层、1200㎡会所共同组成长沙揽阅的7800㎡超级公区,重置空间,更增加海量生活体验和场景;长沙首创双层立体式公区,更大化场景容量。
03 会所新形态,在度假中度过生活
设想100种生活方式,注入12幕首创场景,以运营发散多样化场景,呼应人们对于社交多样化需求,赋予使用者场景变化的自由,让场景激活更多生活方式。
04 艺术新译,与青年匹配的摩登风



0
2
项目概况
招商揽阅择址于长沙岳麓区,梅溪湖国际生活圈,地处麓谷大道与枫林三路交汇处,落座精粹资源集群,展映理想无限缤纷。
社区大门、展示区、会所位于地块西侧主要展示面,与大区标高错层,形成下沉式的绿谷景观区,作为社区的核心景观区,链接南北向的社区景观轴,与沿街的城市活力轴,整体形成一个充满生命力的“H”轴规划结构。
结合场地条件与规划条件,整个规划产品为15+1F~18F小高层住宅楼(12幢)及若干低层底商配套设施楼组成。规划布局中心景观资源佳位置设置大户型,最大化景观视野;架空层尽可能设置全架空,社区大堂结合下沉庭院及架空层泛会所化,提高社区品质。



0
3
外立面
项目整体风格为现代雅奢,白金色调,设计提取长沙非遗手工棕编符号,通过现代手法转译,形成横纵交织的立面构成关系,立面采用圆弧倒角与公建化大落地窗,筑就天幕流线立面。顶部弧形流线元素,流体灵动,奢境典雅,增强标识感;塔身层间线条展现轻盈精贵的气质,突出公建化立面的端庄






0
4
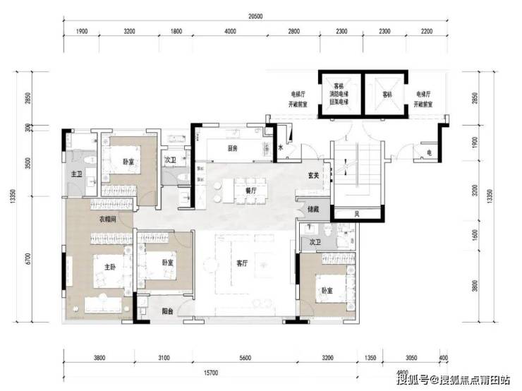
主力户型



0
5
精装设计
会所设计
1、设计概述
展示区室内空间设计延续建筑景观的设计风格,通过总体布局与分幕空间的递进设计,将非遗技艺转化为空间元素,在传承湘江文脉的同时更具有艺术观赏性,在材质的工艺和纹样中使用棕编、湘绣石木雕等传统技艺,实现传统美学与现代审美的创造性融合。不仅展示了「松弛」与「度假」主题的深度阐释,更能在不同功能区之间实现无缝衔接与情感共鸣。为客户构筑了一个具有艺术美感与多重体验层次的城市微度假社区。
功能分区





















样板房展示




128户型,打造时尚的艺术居所,可以做艺术起居室、微醺小酒吧、开放式书房、儿童书房。










0
6
社区规划


首创度假公园式景观:以虹夕诺雅为灵感源泉,打造约3000㎡浮岛溪涧下称庭院,以园林景观贯穿地上与地下,塑造视觉的垂直立体性,打破空间边界,让自然度假感完整无缺的无界流动。
长沙市招商揽阅售楼处电话☎:400-8556-400✔✔
招商揽阅售楼部电话:400-85-56-400【已认证】
如有问题欢迎来电咨询,来电即可享受买房优惠! 预约来电尊享购房优惠,可预约案场内部销售人员,专业一对一热情服务,让您用专业眼光去买房。 楼盘项目全面介绍,本电话为开发商提供线上售楼处电话,楼盘项目全面介绍(包含楼盘简介,楼盘积分,房价,价格,楼盘地址,户型图,交通规划,备案价,项目配套,楼盘详情,售楼处电话,最新消息,最新详情,周边配套,最新进展等详情咨询)
长沙招商揽阅售楼处电话☎:400-8556-400✔✔
湖南省住房和城乡建设厅等9部门关于印发《湖南省促进房地产市场平稳健康发展若干措施》的通知(以下简称“湘十条”)。

“湘十条”着力促进住房领域消费,这是湖南省自2018年之后,时隔7年再次出台省级层面促进房地产平稳健康发展的政策文件。
该政策文件主要围绕以下几个方面制定支持措施:
人才住房需求
为创业大学生、青年人才及高层次人才提供购房优惠券或补贴,支持收购存量商品房作为人才房,并提供创业场地。
多子女家庭购房
对二孩及以上家庭提供契税补贴、货币或面积补贴,并提高公积金贷款额度。
关于公积金贷款,还推出最新人才公积金贷款政策:
1、贷款门槛大幅降低:大学生/青年人才缴存6个月即可申请,高层次人才仅需1个月(前期需连续缴存12个月);
2、额度计算创新:取消余额挂钩(前期贷款额度为余额的15倍),按收入和工作年限核定,更贴合人才实际需求;高层次人才最高可贷4倍额度(如长沙原上限80万,新政最高可达320万)。
房屋“以旧换新”
对出售自有住房并在一年内购买新建商品住房的,提供个人所得税退税优惠及购房补贴。
房地产市场监管
推行存量房交易“先网签后缴税”模式,加强交易资金监管。
“白名单”项目融资
建立金融机构房地产“白名单”项目融资绩效考评机制,加强金融监管。
另外,“湘十条”还涉及城中村改造、城市更新和危旧房改造中的货币化安置,以及盘活存量房地产开发土地和推进“好房子”建设等事项。
该政策自2025年5月28日起施行,有效期一年,并明确如遇国家政策调整,以国家调整后的政策为准。
声明:本文由入驻焦点开放平台的作者撰写,除焦点官方账号外,观点仅代表作者本人,不代表焦点立场。
