2025最新公告-福州【登云湖】售楼处电话/楼盘配套+户型分析+升值空间
扫描到手机,新闻随时看
扫一扫,用手机看文章
更加方便分享给朋友
首页网站丨福州市登云湖售楼处电话-楼盘详情-地址-户型-价格
♐福州登云湖售楼处电话(400-8383-583)◆◆
♐来电预约登记——〢尊享Vip一对一专业置业顾问讲解◆◆
♐郑重承诺:开发商售楼处直销,绝不收取任何费用,中介勿扰!◆◆
♐登云湖网上售楼中心〢欢迎来电咨询〢提前预约可享内部优惠〢1v1销售专业讲解!◆◆
阳光城象屿登云湖楼盘介绍
选对房、买对房对于每个购房者来说都是非常重要的事,所以买房前都会先了解楼盘区域房价、楼市政策等信息本期推荐位于福州晋安的福州阳光城象屿登云湖、接下来将介绍阳光城象屿登云湖怎么样、周边配套以及阳光城象屿登云湖优缺点楼盘分析。阳光城象屿登云湖由福建登云房地产开发有限公司承建开发,开盘时间:2021-06-25,物业类型为:别墅,住宅,装修状况:毛坯,楼盘产权年限: 联排70年,双拼70年,叠拼70年 ,楼盘地址:晋安登云,物业公司:福州登云湖物业服务有限公司,物业费:住宅:洋房3.98元/平;别墅:联排7.8元/平,叠拼5.8元/平,如果您对阳光城象屿登云湖项目感兴趣想了解,请咨询拨打我们售楼处联系电话。
阳光城象屿登云湖周边配套
公交: 园中圣泉寺(170路); 东山村(170路;通学专线2); 园中村(80路;86路)
教育: 登云山庄幼儿园(福建省福州市晋安区登云路388-1号); 福建省农业科学院茶叶研究所(福建省福州市晋安区新店镇埔垱路104号); 福建省农业科学院作物研究所(福建省福州市晋安区西凤路103号)
医院: 福建省儿童医院(福建省福州市晋安区横屿路966号); 晋安区岳峰镇东站社区卫生服务站(福建省福州市晋安区上垱路223号); 儿科内科(福州市晋安区新店外环路国际公园香槟公馆)
银行: 福州农商银行24小时自助银行(园中新苑东北)(福建省福州市晋安区园中村117-10); 中国建设银行24小时自助银行(福州象峰支行)(福建省福州市晋安区东埔园路三盛国际公园拉菲公馆);
美食: 朱记餐饮(福建省福州市晋安区岳峰镇北三环路168号鹤林家居建材广场); 恩顶乡村时光(福州市晋安区鼓宦公路西50米); 榕岸饭店(福州市晋安区鹤林路祥屿佳园-A区)
休闲: 登云山庄(登云路388-2号); 涧田草莓园(福州市晋安区涧山巷与西园路交叉路口往北约90米); 鑫麟茶语(福建省福州市晋安区新店镇山北路三盛国际公园贝肯郡427号)
购物: 振邦康防水工程-登云路店(福建省福州市晋安区登云路388号); 三晋玛钢构槽(福州市晋安区北三环路鹤林家居建材广场7座11号); 南亚锚牌(福建省福州市晋安区北三环路鹤林家居建材市场6号楼107号)
约2500亩 国际人文生态住区 【建筑结构】:汲取同步世界城市的现代简约建筑语言,融合福州传统意蕴,熔炼与现代人审美相契合的建筑风格。央公,国家一级资质物业。秉持“阳光服务,尊贵生活”的服务理念,专为登云湖项目定制一套“便捷、细致、及时”的“云服务”体系。
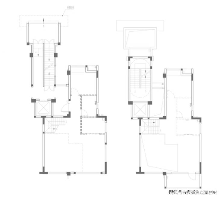
阳光城象屿登云湖户型推荐
4房2厅3卫
户型解读阳光城象屿登云湖格局方正,整体面宽与进深比例合适,便于空间改造和家具摆放。采光性极佳,即使是阴天室内也不会很暗。居室布局合理,通风良好,动静分离,兼顾到了业主的私密性。卫生间干湿分离,保证沐浴之外的区域干燥,保持居家清爽洁净。公摊面积相对合理,符合住宅公摊正常范围,满足日常居住需求。


首页网站丨福州市登云湖售楼处电话-楼盘详情-地址-户型-价格
♐福州登云湖售楼处电话(400-8383-583)◆◆
♐来电预约登记——〢尊享Vip一对一专业置业顾问讲解◆◆
♐郑重承诺:开发商售楼处直销,绝不收取任何费用,中介勿扰!◆◆
♐登云湖网上售楼中心〢欢迎来电咨询〢提前预约可享内部优惠〢1v1销售专业讲解!◆◆
福州住房公积金管理委员会发布《关于进一步优化住房公积金提取政策的通知》(以下简称《通知》),现将《通知》解读如下:
一、制定背景
为贯彻落实国家、省、市提振消费部署要求,进一步发挥住房公积金在降成本、促消费、惠民生等方面作用,根据《福建省提振消费专项行动实施方案》(闽政办〔2025〕12 号)中“扩大住房公积金使用范围”的要求,适时调整优化政策,通过拓展使用场景、提升服务效能,增强惠民实效,激活住房消费潜力。
二、主要内容
(一)购房提取时限有哪些新变化?
答:规定提取时限由“一年内”调整为“三年内”一次性申请提取住房公积金,提取总额不得超过实际支付的购房款(不含住房贷款部分)。
例1:陈先生2025年10月购买一套再交易住房,2025年12月取得不动产权证书。按《通知》规定,他和配偶最迟可在2028年12月前一次性申请提取公积金,若房子总价300万元,首付80万元,贷款220万元,那么夫妻双方按购房提取不超过80万元公积金。
(二)提前结清购房贷款的提取时限哪些新变化?
答:原提前结清购房贷款申请提取住房公积金,应从结清贷款之日起一年内,一次性申请提取。《通知》对此放宽了提取时限由“一年内”调整为“三年内”。
例2:林女士贷款购买一套房产,于2024年4月提前结清剩余贷款,结清贷款本息合计53万元,按现政策规定,林女士及配偶王先生均未申请过提前结清贷款提取的,可在2027年4月前申请一次性提取,总额不超过53万元。
若林女士已于2025年4月按原政策申请了提前结清贷款提取,则林女士不能按照现政策再次申请提取;但林女士的配偶王先生未申请过提前结清贷款提取,则王先生可以按现政策申请,两人合计申请提取总额不超过53万元。
(三)到期自然结清购房贷款的缴存人该如何提取公积金?
自政策发布之日起,缴存人购房贷款到期自然结清,可在三年内申请提取公积金,提取金额不超过实际已偿还,但未提取的购房贷款本息和。
例3:陈先生贷款购买一套房产,于2025年10月到期自然结清。在整个还贷期间,陈先生实际累计偿还贷款本息53万元,此前他通过还贷申请提取公积金33万元,因陈先生的贷款是在政策发布后到期自然结清的,为此陈先生可按现政策,在2028年10月前申请还贷提取,期间合计提取金额不超过20万元。
(四)支持购买车库(位)提取住房公积金如何执行?
缴存人及配偶在本市行政区域内购买与所购住房同一小区的车库(位),可在最迟取得购置车库(位)有效证明材料(买卖合同网签备案证明材料或不动产权证书等,以时间最晚的材料为准)之日起三年内,一次性申请提取住房公积金,提取总额不得超过实际支付的购置费(不含贷款部分)。
例4.郑先生 2025年10月在福州自家小区购买一个车库,支付全款25万元(无贷款),2025年10月取得车库买卖合同网签备案证明,2025年12月取得不动产权证书。按《通知》规定,他及配偶可在2028年12月前一次性提取公积金,提取总额不超过25万元。
(五)更新电梯提取住房公积金的相关政策如何执行?
缴存人、配偶及双方父母在本市行政区域内既有住宅进行电梯更新时,缴存人及配偶在更新电梯缴款之日起一年内,一次性申请提取住房公积金,提取总额不超过实际出资的金额。职工本人及配偶因双方父母小区更新电梯申请提取的,另提交直系亲属关系证明。
例5.王先生的父母在福州有一套住宅,2025年12 月该楼栋进行电梯更新,实际出资5 万元。按《通知》规定,王先生及配偶可在2026年12月前一次性申请提取公积金支持父母住宅电梯更新,提取总额不超过5万元。
三、执行时间认定
《通知》自2025年9月18日起正式施行,其中购买新建商品房、再交易住房、车库(位)的以网签日期为准,更新电梯以缴款日期为准,网签及缴款日期在印发之日后的,方可按照本《通知》政策执行。
声明:本文由入驻焦点开放平台的作者撰写,除焦点官方账号外,观点仅代表作者本人,不代表焦点立场。
