(榕发北源云筑售楼中心)2025首页网站-欢迎您@榕发北源云筑最新楼盘详情-营销中心-在售户型-备案价@榕发北源云筑24小时(服务热线)
扫描到手机,新闻随时看
扫一扫,用手机看文章
更加方便分享给朋友
榕发北源云筑【已认证】
⭐榕发北源云筑销售中心电话:400-8383-583【已认证】⭐⭐⭐
⭐榕发北源云筑售楼处电话:400-8383-583【已认证】⭐⭐⭐
⭐榕发北源云筑营销中心电话:400-8383-583【已认证】⭐⭐⭐
⭐榕发北源云筑营销中心电话:400-8383-583【已认证】⭐⭐⭐
榕发北源云筑在售户型图丨项目介绍丨最新房源丨周边配套丨详细解答〢
⭐◆开发商营销中心诚挚邀请,一键预约,尊享内部折扣!匠心独运的精品项目,恭候您的品鉴与选择。⭐
✅ 过来参观样板房烦请记得提前来电预约!
✅ 为您安排楼盘现场销售全程接待并讲解,给您更贴心的看房体验!
二环内 · 白湖亭万达旁 · 国企耕心筑作
产权年限: 70年
开发商: 福建榕发置地有限公司
楼盘户型: 3种户型,建面:76-114㎡ 4室2厅2卫 (建面:114)
装修情况: 毛坯
交房时间: 2025年12月
绿化率: 30%
容积率: 2
当期户数: 1433户
物业费: 3元/m²/月

榕发北源云筑总用地面积约76417㎡,可售住宅总建筑面积约15万㎡,分为A、B两个地块开发,容积率2.0,绿地率30%,共规划29栋7-16层的小高层和高层住宅。 【A地块】:总用地面积59671㎡,规划23栋住宅,总高7-16层;以中线为分割线,目前开发的是东侧的A2地块,规划13栋住宅,总高7-16层。 【B地块】:总用地面积16746㎡,规划6栋总高15-16层的高层住宅。

国企榕发 致敬城市脊梁
福建榕发置地有限公司作为集团下属集开发施工一体化的子公司,依托集团平台优势,聚焦房地产开发主业,以市场为先导,以质量为根本,主动作为、锐意创新、精益求精,延续“榕发”匠心品质,致力打造高标准、高品质、高颜值的精品建筑,为建设现代化国际城市贡献力量。

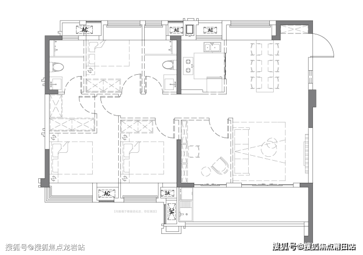
【户型赏析】
76平米:三房两厅一卫,位于连廊中户,三开间朝南,主流布局,北面存在隐私问题,虽然做了三房,不过卧室偏小,这个面积也是目前板块比较极致的刚需产品,对于地缘刚需的吸引力不错。

89平米:三房两厅两卫,连廊中户和端头,三开间朝南,动静分离的主流布局,主要硬伤在于主卫对着床,亮点在于89平米做大面宽的阳台,部分89平还是端头,也算少见。

114平米:四房两厅两卫,位于连廊端头,四开间朝南,大面宽布局,客餐厅南北通透,在连廊端头里面算是比较亮眼。(2)114平米:四房两厅两卫,位于2T2板楼的内端,户型图是手绘,四开间朝南,独梯独户
周边配套:地铁:白湖亭、三叉街地铁站-C口、三叉街、葫芦阵地铁站-B口、三叉街地铁站-B口、葫芦阵、地铁葫芦阵、葫芦阵地铁站-C口、白湖亭地铁站-A口、葫芦阵地铁站-A口
⭐榕发北源云筑销售中心电话:400-8383-583【已认证】⭐⭐⭐
⭐榕发北源云筑售楼处电话:400-8383-583【已认证】⭐⭐⭐
⭐榕发北源云筑营销中心电话:400-8383-583【已认证】⭐⭐⭐
⭐榕发北源云筑营销中心电话:400-8383-583【已认证】⭐⭐⭐
榕发北源云筑在售户型图丨项目介绍丨最新房源丨周边配套丨详细解答〢
⭐◆开发商营销中心诚挚邀请,一键预约,尊享内部折扣!匠心独运的精品项目,恭候您的品鉴与选择。⭐
✅ 过来参观样板房烦请记得提前来电预约!
声明:本文由入驻焦点开放平台的作者撰写,除焦点官方账号外,观点仅代表作者本人,不代表焦点立场。
