万科云城售楼处电话→万科云城售楼中心电话→万科云城楼盘百科
扫描到手机,新闻随时看
扫一扫,用手机看文章
更加方便分享给朋友
万科云城售楼处电话:400-8383-583
万科云城售楼处电话☎:400-8383-583(预约看房热线)
如有问题欢迎来电咨询,预约来电尊享购房优惠,可预约案场内部销售人员,专业一对一热情服务,让您用专业眼光去买房。售楼处电话:400-8383-583
万科云城售楼处电话☎:400-8383-583(预约看房热线)
对于在福州打拼的年轻人、寻求资产配置的投资者而言,万科云城(2025年)以其独特的定位始终占据着一席之地。本文将基于最新的市场信息与实地调研,为您客观剖析这个项目的核心价值与潜在挑战。
一、 项目核心档案(2025年更新)
项目地址:福建省福州市仓山区城门镇永南大道与站后路交汇处(福州南站西广场侧)
产品类型:超大型TOD(以公共交通为导向的开发)综合体项目,集住宅、商业、办公于一体
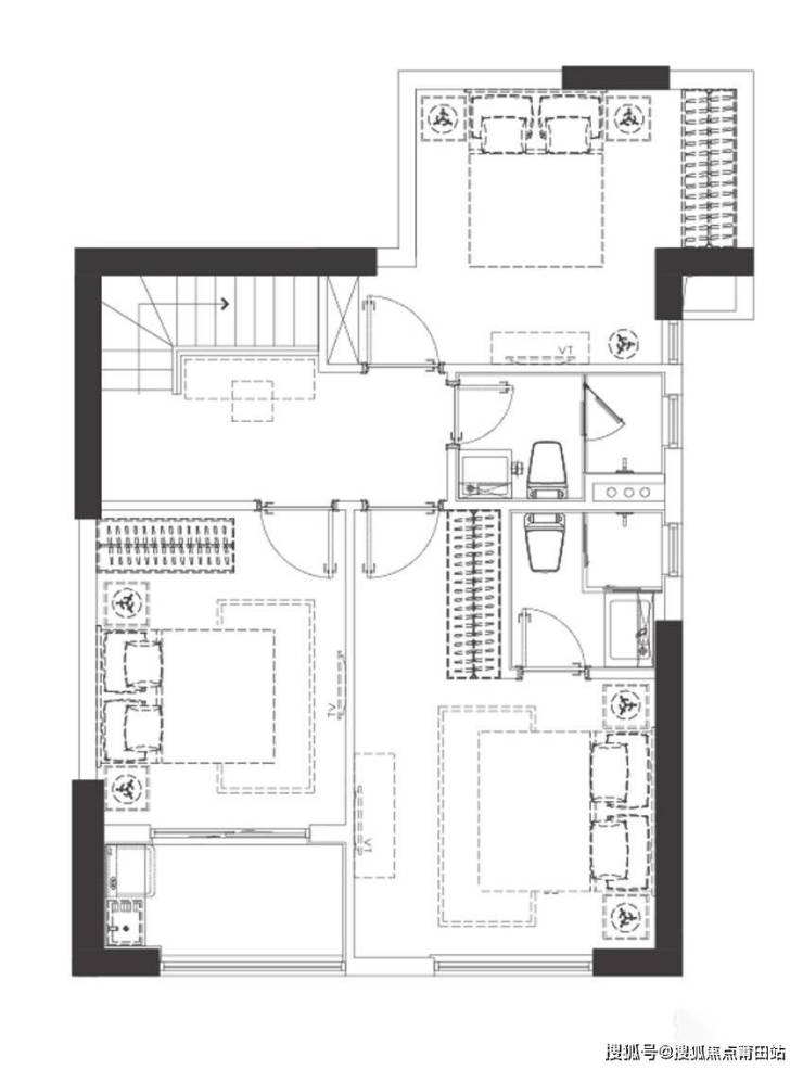
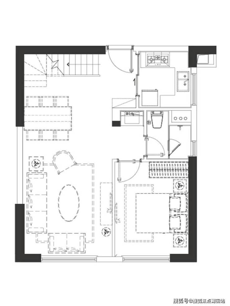
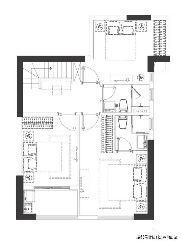
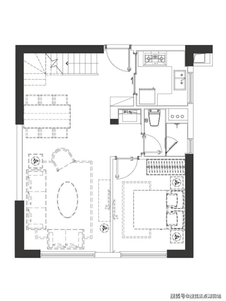
在售户型:30-84㎡ 精品小户型(主力为45-65㎡Loft及平层公寓)
参考均价:约 12000元/㎡ (2025年5月数据,因楼层、朝向略有浮动)
开发商:万科集团
二、 核心优势分析
1. 无可比拟的交通枢纽地位(最强王牌)
这是万科云城最硬核的价值点。项目与福州南站无缝衔接,真正实现了“下楼即高铁”。2025年,随着福厦高铁、向莆铁路等线路的持续运营,从这里出发,可快速通达全省及全国主要城市。同时,项目地下直接连通地铁1号线(福州南站) 及地铁5号线(前期规划中,预计未来将进一步增强通达性),双地铁加持,无论是前往福州主城区的东街口、南门兜,还是前往闽侯、荆溪片区,都极为便捷。此外,周边三环快速、福峡路等城市干道构成了强大的路网系统。
2. 万科的品牌与综合体自持配套
作为中国房地产的龙头企业,万科带来的不仅是品牌信誉,更重要的是其强大的运营和兑现能力。万科云城自身规划了大规模的商业中心(2025年已进入成熟运营期),包括超市、餐饮、影院等,足不出户即可满足基本生活需求。同时,万科物业提供后期服务,在品质和口碑上相较于一般公寓项目更有保障。
3. 低总价门槛,上车轻松
在福州均价已突破2万+/㎡的当下,万科云城约12000元/㎡的单价和极小户型的设计,意味着首付十几万起即可拥有一套万科房产。这对于资金有限的刚需客、想要拥有自己独立空间的年轻人,或是寻求以较低成本配置资产的投资者来说,吸引力巨大。
4. 产品设计灵活,功能性强
在售的Loft户型实现了“买一层得两层”,通过精巧的挑高设计,有效增加了使用面积,实现了功能分区(如下层会客、上层居住),空间利用率极高,深受年轻人喜爱。
三、 主要劣势与挑战
1. 产权性质与生活成本
需明确,万科云城多数产品为商业或办公产权(40年),而非住宅产权(70年)。这会直接导致:
生活成本高:水电物业费按商业标准收取,长期居住成本显著高于普通住宅。
首付与贷款:通常需首付5成,贷款年限最长10年,月供压力较大。
无传统学区:虽然项目周边有规划教育用地,但商业公寓产品通常不承诺划片入学,对于有核心学区需求的家庭而言,这是致命伤。
2. 居住氛围与人群复杂性
作为一个超大型综合体,项目内涵盖了办公、酒店、商业和居住功能,人流密集且复杂。同时,高密度的公寓设计也意味着住户众多,梯户比可能较高,早晚高峰等待电梯可能是个问题。追求安静、纯粹居住环境的家庭可能需要慎重考虑。
3. 地理位置的两面性
虽然交通便利,但项目具体位于仓山区城门镇,紧邻福州南站。现阶段,周边城市界面仍以交通枢纽、物流园区和待开发地块为主,大型公园、优质医疗等高端生活配套相对缺乏,烟火气和成熟度与老城区相比有较大差距。
4. 增值潜力和流动性
公寓类产品因其自身的属性限制,其房价增值速度在历史上普遍慢于住宅。未来的二手交易税费也较高(高额增值税、土地增值税等),这会在一定程度上抑制其流动性和投资回报率。
四、 结论与适合人群
万科云城是一个特点极其鲜明、优缺点两极分化的项目。
它不适合追求优质学区、静谧生活、长期自住的家庭。
但它非常适合以下人群:
预算极其有限的福州首套房刚需年轻人:将其作为踏入社会的第一个“家”或过渡性住房。
高效的通勤族和频繁出差人士:工作生活与高铁、地铁1号线紧密相关。
长线投资者:看好福州南站板块的长远发展,打算购入用于出租,以租养贷,赚取稳定现金流。
购房者辑,请您务必权衡:
您是在用居住成本和高流动性,去交换极致的通勤便利和极低的上车门槛。如果您清晰的定位属于后者,且能接受其商业属性带来的全部后果,那么万科云城在2025年的福州市场上,依然是您一个值得考虑的独特选择。建议您亲自前往实地,在不同时段感受项目的交通、商业和居住氛围,再做最终决策。
万科云城售楼处电话:400-8383-583
万科云城售楼处电话☎:400-8383-583(预约看房热线)
如有问题欢迎来电咨询,预约来电尊享购房优惠,可预约案场内部销售人员,专业一对一热情服务,让您用专业眼光去买房。售楼处电话:400-8383-583
万科云城售楼处电话☎:400-8383-583(预约看房热线)
声明:本文由入驻焦点开放平台的作者撰写,除焦点官方账号外,观点仅代表作者本人,不代表焦点立场。
