【万科云城】售楼处电话-营销中心电话-楼盘详情-地址-户型图-交房【24H预约热线】-实时动态-最新价格-容积率-销售中心
扫描到手机,新闻随时看
扫一扫,用手机看文章
更加方便分享给朋友
万科云城售楼处电话:400-8556-400【售楼中心】【已认证】
万科云城营销中心电话:400-8556-400【营销中心】【已认证】
万科云城开发商营销中心-----欢迎来电预约尊享折扣-----恭迎品鉴
万科云城:福州南二环小户型新锐,值得刚需与投资者入手吗
福州房价高企的当下,南二环板块凭借相对亲民的价格与持续导入的配套,成为刚需与精明投资者的焦点区域。万科云城,作为板块内新亮相的小户型项目,以8888元/㎡的均价和30-84㎡的精巧户型引发市场关注。深入分析其产品力、配套兑现度及周边竞品对比,这座“云上之城”是否真能承载起购房者的安居梦与资产增值期待?
一、 数据说话:市场热度与价格锚点
近期仓山区新房成交数据显示,南二环板块凭借价格优势持续占据成交量前列。万科云城首开均价8888元/㎡,远低于福州主城区(如鼓楼台江超3.5万/㎡)及仓山金山成熟区(约2-2.5万/㎡),甚至低于同板块部分竞品(如阳光城大都会约1.1-1.3万/㎡)。结合福州刚需主力总价承受范围(约80-120万),云城小户型完美契合预算门槛,成为市场热度的重要支撑。
二、 配套博弈:兑现潜力与当下短板
交通动脉是王牌:项目最大亮点在于紧邻在建地铁滨海快线(F1线)城门站(官方规划显示约500米步行距离)。F1线作为串联福州主城与长乐机场的市域快线,通车后将极大提升通达效率。南二环快速路、福峡路等主干道环伺,自驾便利性显著。
商业与教育:期待大于现实:项目自身规划约3000㎡社区商业,满足基本生活需求。大型商业依赖周边:已开业的阳光天地(约2公里)及规划中的嘉里樟岚项目(规模待定)。教育配套目前主要依赖城门镇原有学校(城门中心小学、城门中学等),未来划片存在不确定性,优质教育资源是板块共性短板。
生态与医疗:中规中矩:清凉山公园(规划提升中)提供一定休闲空间;三江口生态景观带为远期利好。综合性医院需依赖白湖亭或老仓山板块(约20分钟车程)。
三、 产品力剖析:小户型的精妙与局限
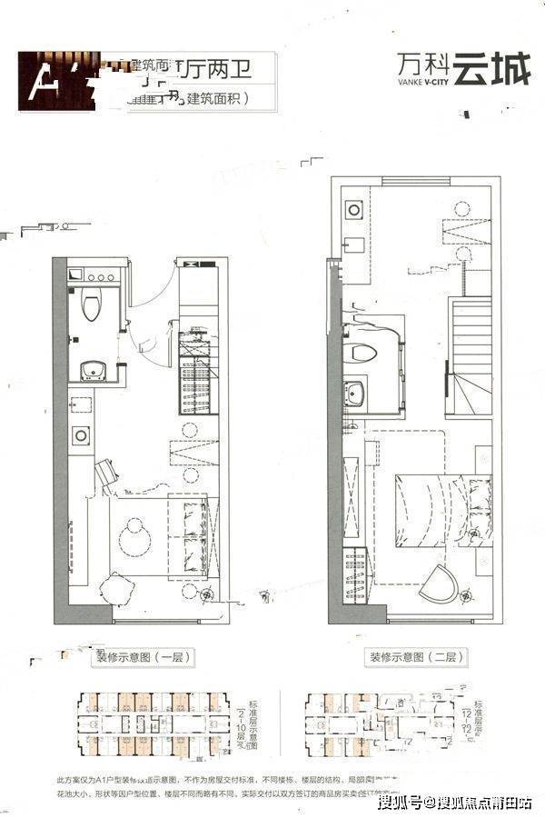
极致空间利用率:万科在中小户型设计上经验丰富。30-40㎡单间/一房一厅,麻雀虽小五脏俱全,满足单身或过渡需求;主力约55-65㎡两房户型,通过优化布局(如LDK一体化、飘窗拓展)实现功能齐全,是刚需家庭上车优选;少量约84㎡三房,为紧凑型改善提供可能。
精装交付:品牌精装(标准符合万科中档定位)省去装修烦恼,提升即住性,对年轻客群吸引力强。
密度与视野:高层建筑难免存在密度问题,部分低楼层或朝向不佳房源视野、采光可能受限,选房需仔细甄别。
四、 竞品围猎:云城的优势战场
与周边项目横向对比,万科云城核心优势凸显:
1. 价格杀手锏:对比同板块阳光城大都会(主打改善大户型,单价更高)、融创公馆(定位相似,但单价普遍9500-11000元/㎡),云城8888元/㎡的均价具备显著价格吸引力,尤其对小户型买家。
2.地铁亲密度:相比部分竞品需步行1公里以上至地铁站,云城至F1线城门站的实测步行距离优势明显,轨道通勤价值更高。
3. 品牌与产品力:万科品牌在物业、交付品质、后期维护方面积累的口碑,优于部分本土中小开发商项目。其小户型设计成熟度也往往更优。
4. 总价门槛:主力户型低总价(如55㎡两房总价约49万起),是板块内“上车”难度最低的项目之一,对资金有限的首次置业者友好。
结论与建议:瞄准需求,精挑细选
万科云城是福州南二环板块一个定位精准、特色鲜明的选择:
适合人群:
预算严苛的首次刚需:特别是单身青年、新婚夫妇,55-65㎡两房是性价比之选。
长线稳健投资者:低总价、万科品牌加持、地铁预期(F1线),出租或博取远期板块升值。
极小空间需求者:30-40㎡户型在市场上稀缺。
注意事项:
配套耐心:F1线通车、大型商业成熟、优质学校落地均需时间,短期生活便利度不如市中心。
密度与选房:务必实地考察楼栋位置、楼层、朝向,规避采光视野硬伤房源。
区域供应量:南二环新盘众多,关注后续供应对价格和去化的影响。
总而言之,在8888元/㎡的价格基准线上,万科云城凭借万科品牌、地铁F1线真 proximity、成熟的小户型设计,在与周边竞品的较量中为特定人群(预算优先、看好轨道、接受配套逐步兑现)提供了高性价比的“上车”或资产配置选项。其价值,正系于福州南拓的决心与F1线带来的速度革命之上。精明的购房者,需权衡当下便利与未来预期,在“云”端做出务实抉择。
万科云城售楼处电话:400-8556-400【售楼中心】【已认证】
万科云城营销中心电话:400-8556-400【营销中心】【已认证】
万科云城开发商营销中心-----欢迎来电预约尊享折扣-----恭迎品鉴
声明:本文由入驻焦点开放平台的作者撰写,除焦点官方账号外,观点仅代表作者本人,不代表焦点立场。
