【售楼中心】长沙运达滨河广场最新情况|【运达滨河广场】售楼处联系电话|最新房价|售楼处特价房运达滨河广场【2025售楼部号码更新】
扫描到手机,新闻随时看
扫一扫,用手机看文章
更加方便分享给朋友
【运达滨河广场】
2025最新更新长沙市【运达滨河广场】售楼处电话/在售户型图/项目运达滨河广场售楼处电话/地址_ 营销中心位置
长沙【运达滨河广场】销售中心电话:400-8556-400 【营销中心】
楼盘详情介绍丨最新售价丨户型鉴赏丨周边配套丨详细在线解答

如需了解最新房源信息_咨询优惠政策_请拨打上方售楼部电话!
运达滨河广场售楼处电话:400-8556-400【售楼处认证】
长沙运达滨河广场售楼处电话:400-8556-400【营销中心】
⭐再创住宅品质新高度
⭐引领湖湘美好新生活
⭐建面约223-545㎡滨河临街双公园豪装
2022年度雨花区住宅销售前五
🎖2023年上半年长沙楼市住宅销售前十
且为唯一上榜的成交单价超2.5万/㎡楼盘
🥇持续引领长沙高端改善市场


【项目区位】

【项目平面图】

【项目宣传片】

【项目概况】
开发商:湖南运达房地产开发有限公司
物业公司:湖南水清木华物业管理有限公司
用地面积:约62044.83㎡
建筑面积:约252032.845㎡
定位:滨河临街双公园综合体 主城低密豪装系大宅
绿地率:35.66%
容积率:3
总楼栋:10栋花园洋房、4栋高层住宅、1栋超高层商业住宅
总户数:洋房10套、商业住宅80+套
面积段:洋房223㎡;商业住宅265-545㎡
层高:
商业住宅3.5米;高层住宅3.3米
洋房标准层3.3米;8#栋标准层3.6米
洋房底复一层3.6米;洋房地下室5.45米
洋房顶复上下层均为3.6米
交房时间:住宅2024年9月,商业24年9月
【运达品牌】
幸福美好生活的综合服务商
运达集团作为一家拥有房地产、酒店、贸易、工业四大核心板块和互联网O2O综合服务平台的百亿级品牌企业。20多年来,创新不止,在多个领域创优争先,运达地产是高端产品的开发者、高端服务的提供者和高端生活的引领者,致力为高端客群打造集吃、住、娱、购、商务办公于一体的全方位体验式生活方式,是幸福美好生活的综合服务商。
公司在涉足的多个领域创造了长沙第一、湖南第一乃至中国第一,湖南最高端的酒店、最精致的商场、最高品质的住宅、最高标准的写字楼都贴上了运达标签。

【运达滨河广场】
🌿滨河临街双公园综合体
运达滨河广场坐落于长沙大道与万家丽路交汇处,总建筑面积约26万平米。由10栋花园洋房、4栋高层住宅、1栋超高层商业住宅和2个公园,组成纯居住花园社区。为业主打造高品质、高品位、优环境的美好生活。
【项目价值】
地铁上盖物业 五维立体交通
项目雄踞高铁会展新城核心地段,直通地铁5号线,业主不出地面即可到家,坐享“地铁、高铁、高速公路、磁悬浮、航空”五维一体的立体交通,真正实现零换乘通全球 。
师大附中名校学位 12年优质教育配套
与政府共建师大附中九年一贯制学校,自建2000平米高品质幼儿园,业主子女直接入读名校,家门口尽享12年优质教育资源。

国际精品商业 繁华举步即达
项目自带近万平米地铁精品商业,毗邻瑞吉酒店、W酒店、运达汇等运达系国际高端商业,全方位满足业主休闲、购物、聚会、娱乐等高品质生活需求。

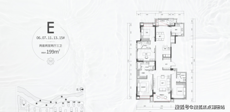
【户型平面图】


































2025最新更新长沙市【运达滨河广场】售楼处电话/在售户型图/项目运达滨河广场售楼处电话/地址_ 营销中心位置
长沙【运达滨河广场】销售中心电话:400-8556-400 【营销中心】
楼盘详情介绍丨最新售价丨户型鉴赏丨周边配套丨详细在线解答
根据国务院《住房公积金管理条例》《长沙市住房公积金管理条例》及《长沙住房公积金缴存管理办法》等有关规定,现就做好2025年度住房公积金缴存基数和缴存比例调整工作有关事项通知如下:
一、调整内容

01
住房公积金缴存基数
住房公积金缴存基数根据职工本人上一年度工资总额除以12确定,工资总额组成按照国家有关规定执行。住房公积金缴存基数不得低于上一年度长沙市人社部门公布的职工月最低工资标准,不得超过长沙市统计部门公布的上一年度职工月平均工资的3倍。
根据长沙市人力资源和社会保障局《关于长沙市2024年调整最低工资标准的通知》和长沙市统计局公布的“2024年长沙市城镇非私营单位在岗职工年平均工资125162元”计算,2024年度长沙市城镇职工月平均工资为10430.17元。因此,2025年职工住房公积金缴存基数最低为2100元,最高为31291元。
湖南省内铁路职工的住房公积金缴存基数上限参照广州市铁路职工缴存基数执行(广州市铁路职工缴存基数上限以每年广州住房公积金管理中心公布的住房公积金缴存调整文件为准)。
02
住房公积金缴存比例
2025年度长沙市单位和职工住房公积金最低缴存比例为5%,最高缴存比例为12%。一个单位账户应确定一个缴存比例,且该单位账户内的职工住房公积金缴存比例和单位住房公积金缴存比例应当一致。
03
住房公积金月缴存额上、下限
职工住房公积金月缴存额为缴存基数分别乘以职工本人和所在单位的住房公积金缴存比例之和。计算公式为:月缴存额=缴存基数×(职工缴存比例+单位缴存比例)。
经测算,2025年度长沙市住房公积金月缴存额最低为210元,最高为7510元。
二、调整期限

住房公积金缴存基数、缴存比例每年度调整一次,各缴存单位应于2025年9月30日前办理住房公积金缴存基数、缴存比例和月缴存额的调整核定工作。
三、办理渠道

01
线下办理
各缴存单位专管员携带本人身份证明原件、《长沙住房公积金缴存基数调整清册》《长沙住房公积金缴存比例调整表》(各一式两份,均加盖单位公章),到缴存管理部柜台申请办理。
声明:本文由入驻焦点开放平台的作者撰写,除焦点官方账号外,观点仅代表作者本人,不代表焦点立场。
