福清云上龙锦公馆售楼处电话【全网认证】→福清云上龙锦公馆售楼中心首页网站→楼盘百科详情→福清云上龙锦公馆24小时电话
扫描到手机,新闻随时看
扫一扫,用手机看文章
更加方便分享给朋友
在这个快节奏的时代,每个人心中或许都藏着一个“采菊东篱下,悠然见南山”的田园梦想,渴望在纷扰尘世中寻得一片宁静,与自然和谐共处。
广宇设计深谙都市人对自然的渴求,以引领创新的第4.5代生态住宅,重新定义人与自然和谐共生的人居新风尚。
您的浏览器不支持 video 标签
“ 居住的价值,隐藏于其中最核心的是与城市之间的关系。只有那些既能享受自然资源,又有城市繁华背景的区域,才是最具价值的居所。”
---斯蒂芬.霍尔
△区位&交通&景观分析图
项目地处福建省福清市,周边城市生活完善,景观资源优渥,交通便捷,如此中芯地段难再有。
△意向图,不作为交付承诺

△效果图过程稿,不作为交付承诺
广宇设计深谙塔尖人物对自然的渴求,站在第四代生态住宅巨人的肩膀上,改善其不足,融入新创意,于福清贵脉核心之地,创造福建第一个4.5代生态住宅——云上龙锦,这是一次经典之上的再次超越,一次超越想象的全新人居形态,也是一次焕新居住体验和自我期待的生活惊喜。
“ 介入的实质则是新的建筑应该怀有与现有环境进行有意义的对话的能力,因为如果新建筑的介入是为了找自身的位置,它必须让我们用新的观点去看待现状。
我们把一个石块扔进水里,沙子被漩起又回落到他的位置,可池塘再也不一样了。”
---彼得.卒母托
△效果图过程稿,不作为交付承诺
作为福建的首个第4.5代生态住宅,云上龙锦在建筑设计的每一个维度上,都拥有颠覆式的突破,创领下一阶段人居潮向。
从立面设计上: 标志性的游艇风立面,以湖水为灵感,让建筑像一艘艘游艇穿行于天际,线条流畅,动感丰富,诠释现代城市的建筑美学,造就震撼的视觉盛宴。
从垂直绿化上:运用全新第四代生态住宅理念,打造露台外伸、奇偶层错位的空中庭院,实现采光和观景视野的“平权”,引生态入户,让鲜氧绿意在空中绽放,以超然视界俯瞰城芯之景,彰显豪宅气质风范,满足都市人对诗意栖居的追求 。
从景观视野上: 设计充分利用项目先天台地的优势,构建了错落有致、律动感的“城市绿色天际线”,呈现绝佳景观视野,于城市方寸间与自然保持亲密,与喧嚣保持距离,使居者畅意感知静谧。
△意向图,不作为交付承诺
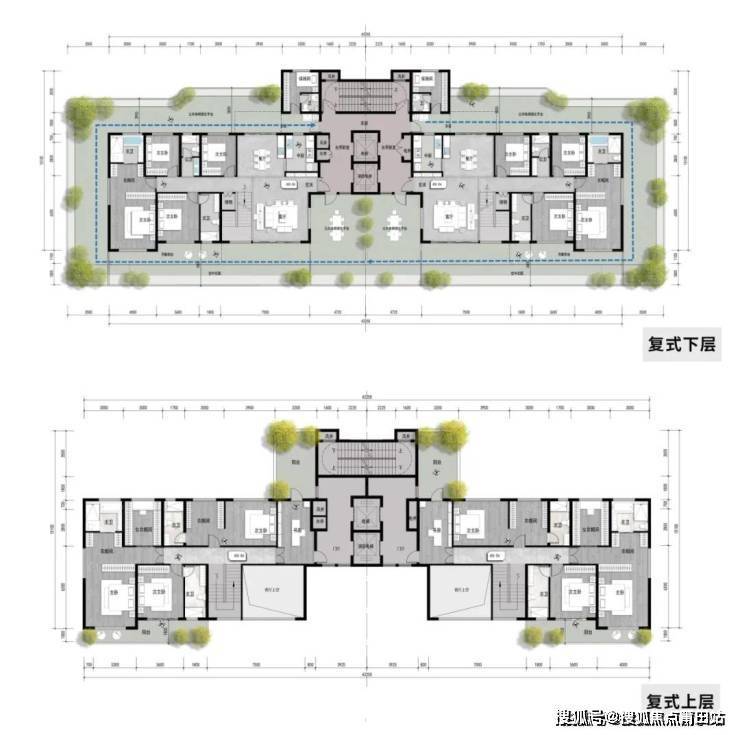
项目户型主要从组合方式以及空间特点的两方面迭代:
●组合方式:颠覆性地向上进行空间突破,以上下双层复式设计迭代未来生活想象。
●空间特点:明确动静分区,360°环绕式空中花园,内嵌式超大共享绿化平台,酒店式布局,开放餐厨空间,豪华主卧套房等,突出极大景观视野和内部空间尺度。
01
上下双层复式设计:双层挑高,将室内空间层次化,实现更高的空间利用率,以向上姿态跃级美好生活,启幕城央璀璨生活理想。
△意向图,不作为交付承诺

△效果图过程稿,不作为交付承诺
02
高端住宅户型新样本:从空间释放及功能享受双重生活感知出发,将每一立方米的舒适度最大化,让精致、奢适、无界的生活融入每一个日常。
△意向图,不作为交付承诺

为推进国有土地上零星危险住房自主更新改造工作,改善群众居住条件,消除房屋安全隐患,保障人民生命财产安全。日前,福州市出台《福州市国有土地上零星危险住房自主更新改造实施办法》。
据悉,此自主更新改造将坚持“政府引导、政策支持、业主自愿、市场运作”的原则,由政府发挥指导协调作用,出台优惠政策提供支持,尊重零星危险住房业主自主意愿,业主自筹资金实施改造。
本办法自印发之日起施行,有效期5年。
声明:本文由入驻焦点开放平台的作者撰写,除焦点官方账号外,观点仅代表作者本人,不代表焦点立场。
