厦门「中海花湾」_售房部电话_官方网站首页_成交价及优惠查询_1月房价动态-厦门中海花湾官方售楼处电话
扫描到手机,新闻随时看
扫一扫,用手机看文章
更加方便分享给朋友
厦门中海花湾售楼处电话4008556400【售楼中心】【已认证】
厦门中海花湾营销中心电话4008556400【营销中心】【已认证】
厦门中海花湾开发商电话4008556400【开发商】【已认证】
厦门中海花湾售楼中心〢预约尊享1V1品鉴礼遇〢匠心钜制-恭迎品鉴〢
免责声明:【本文所用信息图片来源于网络,如侵权请联系本网站及时删除】
核验要点

认准统一热线4008556400,警惕“代办、留房费、茶水费”等违规承诺;以开发商/售楼处官方口径为准。
信息更新
如遇开放时间或接待安排调整,请以电话客服最新通知为准,避免因信息滞后影响行程。
✅户户高尔夫景观,长在公园里的房子
✅双地铁,三BRT
✅家门口一站式12年教育
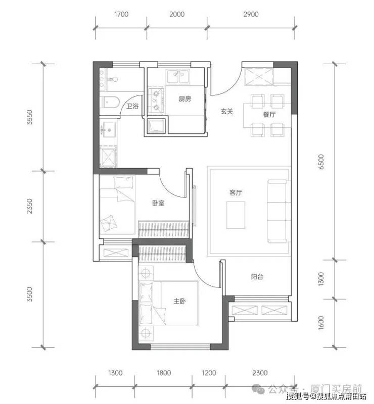
建面约65-68㎡两房两厅一卫
建面约78-80㎡三房两厅一卫
建面约89㎡三房两厅两卫户户边套 南北通透
小区及周边配套:
【交通出行】双快双轨双BRT交汇,多维交通高效链接岛内外,更有11条公交路线经过,城势再提速。
(双快:同集路/海翔大道;双轨:4号线(建设中)/9/6号线(在建);双BRT:快2/5线)
【学校资源】近邻公办九年一贯制中小学(东山附属学校)、公办幼儿园(在建中),家门口的12年一站式教育主场
【医疗康养】优质三甲医院—环东海域医院,享高品质医疗服务。
【商业配套】2500㎡社区底商;项目东侧5470㎡社区服务中心,包含1500㎡生鲜超市、医疗服务中心、家政中心、多功能厅(包含开会、区文艺排练、社区电影等)、邻里图书馆等。
【休闲配套】毗邻环东歌剧院(规划中)、方特乐园、滨海旅游浪漫线、嘉庚体育馆等配套,生活便捷随心。
景观:户户(首期)直瞰果岭 悦享无界风光:
近邻约3500亩高尔夫景观(≈超1个鼓浪屿的大小),以高层价格跃享奢级体验,实属鹭岛难再得。

社区园林
—花Young享法,一湾尽藏,开创理想城邦—
中海丨花湾,秉承中海“湾系”的尊崇品质,把温暖、有活力的生活场景种植在“一轴·两馆·三厅·四湾”的花湾栖居里,兑现高知业主对理想生活的热望。
沉浸式理想湾居,领潮时代的归家动线
提炼厦门水湾人文元素,将国潮文化与社区场景创新结合,从酒店式社区大堂、四时景观绿轴到浪漫归家环线,移步易境,让归家成为风景之旅。
01
1月5日至6日,2026年中国人民银行工作会议召开,部署全年七大重点工作,围绕货币政策实施、金融服务实体经济、风险防控、金融改革开放等核心领域,明确行动路径。
其中,在继续实施好适度宽松的货币政策中提及:灵活高效运用降准降息等多种货币政策工具。
保持流动性充裕、保持社会融资条件相对宽松、引导金融总量合理增长、信贷投放均衡、使社会融资规模、货币供应量增长同经济增长和价格总水平预期目标相匹配等。

这也就意味着,今年可能会迎来降准、降息等货币政策利好。
此外,据高盛预计中国央行今年一季度有一次“双降”。包含一次50个基点的降准和一次10个基点的降息,三季度将再有一次10个基点的降息。

步入2026年,厦门房贷利率确实发生了变化,主要体现在公积金贷款利率,这一调整自2026年1月1日起正式实施。
厦门商业房贷利率
在商业贷款方面,2025年LPR仅进行过一次调整。目前,1年期LPR为3.0%,5年期以上LPR为3.5%。
落点厦门:首套/二套房商业贷款利率:LPR(3.5%)- 45BP = 3.05%(首付比例最低15%),为历史最低水平。
厦门公积金贷款利率
2026年1月1日起,全国存量公积金利率将统一下调25BP,首套降到2.6%,二套降到3.075%!
根据2025年5月7日发布的《中国人民银行关于下调个人住房公积金贷款利率的通知》,自2025年5月8日起,下调个人住房公积金贷款利率0.25个百分点,5年以下(含5年)和5年以上首套个人住房公积金贷款利率分别调整为2.1%和2.6%。5年以下(含5年)和5年以上第二套个人住房公积金贷款利率分别调整为2.525%和3.075%。
对于2025年5月8日以前已经发放的个人住房公积金贷款,自2026年1月1日开始,执行调整后的个人住房公积金贷款利率。
声明:本文由入驻焦点开放平台的作者撰写,除焦点官方账号外,观点仅代表作者本人,不代表焦点立场。
