长沙周南学府售楼处电话400-8383-583【售楼中心】 周南学府24小时热线◆温馨提示:看房需提前预约 长沙市周南学府售楼处电话400-8383-583【售楼中心】
长沙周南学府售楼处电话400-8383-583【售楼中心】
周南学府24小时热线◆温馨提示:看房需提前预约
4008383583
长沙市周南学府售楼处电话400-8383-583【售楼中心】

〢尊享售楼处1v1销售专业讲解〢
◆在售房源户型价格详询售楼处〢一对一热情服务
心等待,预约来电尊享内部优惠,专业一对一热情服务,让您用专业眼光去买房。
编辑

项目样板间实拍图,非交付标准,仅供参考
当然,如果你更喜欢开敞的感觉,那就保持客厅约5.8米的中空挑高;搭配南向景观阳台,公区通透大气。
编辑

项目样板间实拍图,非交付标准,仅供参考
最后是赠送空间够大,实际居住体验不输建面约145㎡的平层户型,性价比很高。
其首层阳台、室内花园都只计一半的建筑面积;飘窗和二楼挑空部分则完全不计入建筑面积中, 全屋赠送面积高达近30㎡。
算下来, 实际得房远超100%!
再换个角度看,这套建面约119㎡的毛坯复式不仅赠送空间大,其上下分层、动静分区带来的高舒适度,可能比一般建面约145㎡的平层户型还要好。
而相比于一套建面约145㎡的平层,周南学府这套建面约119㎡的 四房首付仅约35万就能上车,光是门槛省出了一辆代步车,谁能不心动?!
编辑

项目样板间景拍,仅非交付标准仅供参考
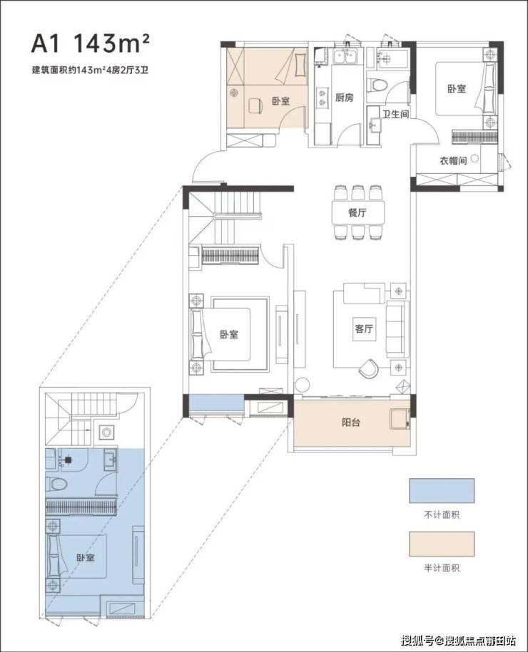
此外,项目不仅有 建面约127㎡平层户型在售,还 即将加推建面约143㎡毛坯复式,不仅得房率超高,还有灵活的改造空间——
比如规划出大横厅,既能放大景观优势,也能实现家人之间的高频互动,居住起来非常享受!
三款户型毫无悬念入选“必看款”,估计好的楼层还得拼手速。
编辑

周南学府是由金霞新城城市运营商、国企大牌湖南金霞发展集团倾力打造的人文意境纯住区。金霞集团一直以来深耕北城,助推北城全面发展,实力品质有口皆碑。

项目地处金霞副中心热点板块秀峰鹅羊板块,位于城市主干道芙蓉北路与天鹅大道交汇处,与百年学府周南中学仅一路之隔,尽享一带双公园生态景观资源,区域与地段价值无可限量。

交通体系四通八达,距离地铁1号线秀峰山站(在建)、地铁12号线秀峰山站(规划中)直线距离约200米,出行便捷,快速抵达长沙多中心繁华商圈。
目前,建筑面积约119㎡复式空中墅,建筑面积约91-143㎡阔景高层新品即将面市,


·项目效果图
户型图手握 建面约119㎡复式产品,周南学府一出场就可谓大杀四方。原因很简单——
首先就是户型面积不大, 总价相对较低,好上车。

其次是层高约有 5.8米,而且是 毛坯交付,后期可以选择在客厅上方的中空部分封一层楼板,就能够实现4房2厅3卫的布局,而且是“一层一套间”。
首层套房就给父母/孩子住,独立卫生间设计,让不同生活习惯做到互不干扰。在二层使用面积近30㎡的豪华主人房里,能规划出独立衣帽间和主卫,尺度舒适自在。

周南学府
咨询高峰期请耐周南学府
咨询高峰期请耐心等待,预约来电尊享内部优惠,专业一对一热情服务,让您用专业眼光去买房。
百年名校旁,住生态人文社区!
展开地图,周南学府 与周南中学仅一路之隔。
自1905年创办以来,周南中学已有百余年的深厚底蕴,一直声名在外。
坊间称之为长沙六大名校之一,数不清的家长希望孩子考进去,这不止是因为其 一本上线率近90%,也因为周南中学是湖南省 唯二的飞行员学校,2022年学校共有35名学生录取为飞行员,全国第壹(数据源自:长沙周南中学官微)。

周南中学实景图,来源网络,仅供参考
咫尺之间,又有 周南秀峰学校;其与本部资源共享,校长、部分管理干部及骨干教师由本部直派。
双学府环绕,书香浸染的同时还有 “一江两河三山”(湘江、浏阳河、捞刀河、秀峰山、鹅羊山和太阳山)将周南学府环抱在内,人文和自然景观构成了诗情画意,居住环境宜人。
鹅羊山实景图,图源网络

走进社区内部,占地面积约3万㎡的周南学府规划了 约1万㎡的园林景观,绿化达到约35%。香樟、桂花树、乌桕树、樱花树、紫薇、银杏树阵等夹道相迎,生活品质舒然提升。
项目重点营造了人文意境,在这里有阳光草坪、阳光会客厅(中央泛会所)、童趣乐园、林间慢跑环、颐养花园......可以适配全龄业主对休闲空间的差异需求。




项目实景图,仅供参考
在外立面的设计上,项目规划的 7栋小高层均为类板楼,银灰色里面搭配白色轮廓,再辅以简洁明快的线条造型,将整个建筑衬托得大气而优雅。
项目效果图,仅供参考
长沙周南学府售楼处电话400-8383-583【售楼中心】
周南学府24小时热线◆温馨提示:看房需提前预约
长沙市周南学府售楼处电话400-8383-583【售楼中心】
2025年8月20日贷款市场报价利率(LPR)
中国人民银行授权全国银行间同业拆借中心公布,2025年8月20日贷款市场报价利率(LPR)为:1年期LPR为3.0%,5年期以上LPR为3.5%。以上LPR在下一次发布LPR之前有效。
