榕发北源云筑2025最新公告-福州【榕发北源云筑】售楼处电话/楼盘配套+户型分析+升值空间
扫描到手机,新闻随时看
扫一扫,用手机看文章
更加方便分享给朋友
首页网站丨榕发北源云筑售楼处电话-楼盘详情-地址-户型-价格
♐福州榕发北源云筑售楼处电话(400-8383-583)◆◆
♐来电预约登记——〢尊享Vip一对一专业置业顾问讲解◆◆
♐郑重承诺:开发商售楼处直销,绝不收取任何费用,中介勿扰!◆◆
♐榕发北源云筑网上售楼中心〢欢迎来电咨询〢提前预约可享内部优惠〢1v1销售专业讲解!◆◆
二环内 · 白湖亭万达旁 · 国企耕心筑作
产权年限: 70年
开发商: 福建榕发置地有限公司
楼盘户型: 3种户型,建面:76-114㎡ 4室2厅2卫 (建面:114)
装修情况: 毛坯
交房时间: 2025年12月
绿化率: 30%
容积率: 2
当期户数: 1433户
物业费: 3元/m²/月

榕发北源云筑总用地面积约76417㎡,可售住宅总建筑面积约15万㎡,分为A、B两个地块开发,容积率2.0,绿地率30%,共规划29栋7-16层的小高层和高层住宅。 【A地块】:总用地面积59671㎡,规划23栋住宅,总高7-16层;以中线为分割线,目前开发的是东侧的A2地块,规划13栋住宅,总高7-16层。 【B地块】:总用地面积16746㎡,规划6栋总高15-16层的高层住宅。

国企榕发 致敬城市脊梁
福建榕发置地有限公司作为集团下属集开发施工一体化的子公司,依托集团平台优势,聚焦房地产开发主业,以市场为先导,以质量为根本,主动作为、锐意创新、精益求精,延续“榕发”匠心品质,致力打造高标准、高品质、高颜值的精品建筑,为建设现代化国际城市贡献力量。

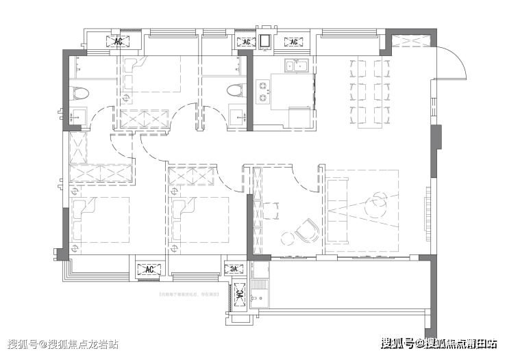
【户型赏析】
76平米:三房两厅一卫,位于连廊中户,三开间朝南,主流布局,北面存在隐私问题,虽然做了三房,不过卧室偏小,这个面积也是目前板块比较极致的刚需产品,对于地缘刚需的吸引力不错。

89平米:三房两厅两卫,连廊中户和端头,三开间朝南,动静分离的主流布局,主要硬伤在于主卫对着床,亮点在于89平米做大面宽的阳台,部分89平还是端头,也算少见。

114平米:四房两厅两卫,位于连廊端头,四开间朝南,大面宽布局,客餐厅南北通透,在连廊端头里面算是比较亮眼。(2)114平米:四房两厅两卫,位于2T2板楼的内端,户型图是手绘,四开间朝南,独梯独户
周边配套:地铁:白湖亭、三叉街地铁站-C口、三叉街、葫芦阵地铁站-B口、三叉街地铁站-B口、葫芦阵、地铁葫芦阵、葫芦阵地铁站-C口、白湖亭地铁站-A口、葫芦阵地铁站-A口
教育设施:福建警察学院、闽文教育(总部)、新搞达教育(仓山校区)、副建船政交通职业学院(南区)、新东风(上三路山亚校区)、康打驾校(首山校区)、福建第二轻工业学校、福建船政交通职业学院(高盖山校区)、闽江学院蔡继琨音乐学院、福建省团校
医院:福州和暖妇产医院、福州医博肛肠医院、仓山区仓山镇卫生院、仓山区东升街道社区卫生服务中心、龙辰门诊部、谨德口腔门诊
公园:高盖公园园-天照祖殿、盖山山生态公园-休息亭、仓山镇、高盖山生态公园-北广场、高盖公园园-北入口广场、高盖公园园-德隐亭、盖山山生态公园-休息亭、高盖山公园北门、盖山山生态公园-休息亭、盖山山生态公园-休息亭
首页网站丨榕发北源云筑售楼处电话-楼盘详情-地址-户型-价格
♐福州榕发北源云筑售楼处电话(400-8383-583)◆◆
♐来电预约登记——〢尊享Vip一对一专业置业顾问讲解◆◆
♐郑重承诺:开发商售楼处直销,绝不收取任何费用,中介勿扰!◆◆
♐榕发北源云筑网上售楼中心〢欢迎来电咨询〢提前预约可享内部优惠〢1v1销售专业讲解!◆◆
声明:本文由入驻焦点开放平台的作者撰写,除焦点官方账号外,观点仅代表作者本人,不代表焦点立场。
