【大东海中央府】项目介绍|大东海中央府售楼部电话-内附图文详解|大东海中央府楼盘最新消息
扫描到手机,新闻随时看
扫一扫,用手机看文章
更加方便分享给朋友
【面积】35-59平方
【产权】40 商住SOHO
【总层高】10层,四梯34户,
【层高】4.5米,公摊21%
【总户数】322
【交房时间】2022年九月
【商铺项目基本信息】
【面积】50-160平方
【层高】4.5米,8.7米
【产权】40年
【总户数】133间
【交房时间】2022年9月
【总价】50-160平方
【均价】3.7万
编辑

建面约42-160㎡,价格2.8w-4.8w,四大名铺——黄金地铁铺、繁华社区铺、人气学校铺、吸金景区铺,铺铺临街,面向四大消费人群(地铁人流、社区业主、学校师生、景区游客),聚集鼎盛人气,坐享财富聚宝盆。
【品牌实力】
品质大东海,实力护航
大东海地产集团,创立、发展于福州,深耕八闽20子,为城市创造有温度的臻品社区,并以其雄厚实力稳居福州房企第一阵营。
————————————————————
【区位配套】
错过东二环,买下一个东二环
泰禾广场入驻,东二环成为城市商业门户封面。商圈带动板块发展,如今三大综合体落户赋能南二环,成就“下一个东二环”。
崛起南二环,寸金地段往后难觅
板块势能释放,各大品牌开发商抢滩进驻,南二环秉持地段优势和板块红利,以比肩“下一个东二环”之势成为新兴崛起的烫金热土。
编辑

————————————————————
五重价值核聚
投资自住首选复式金寓
重磅配套人气聚集,抄底下一个东二环
正地铁口,出行从容自在
距地铁1号线葫芦阵站仅约150米,与2/4/6号线换乘通达全城。以深圳为例,地铁口租金几乎是2公里外租金的两倍以上。
百万商圈,繁华城芯钱景可期
2公里内覆盖则徐万达广场(年底开业)、世界城综合体(在建中)、SM城市综合体(规划中)3大综合体,吃喝玩乐购一站尽享。
四所学校,家长陪读首选
近邻仓山实验小学(郭宅校区)、后坂中学、福六中、盖山中学,坐享数万学生、教师、家长三类固定消费人群。
CBD办公区,海量白领汇聚
近邻东部办公区&5730亩江南CBD,公务员、白领等城市菁英人口汇聚于此,形成极具凝聚力的消费磁场,人口红利优势显著。
醇熟社区,20000+社区人气
200亩人文综合住区自带20000+固定社区人气,周边十余个高端社区环绕,高净值圈层汇聚,宜居易租,居住更舒适。
————————————————————
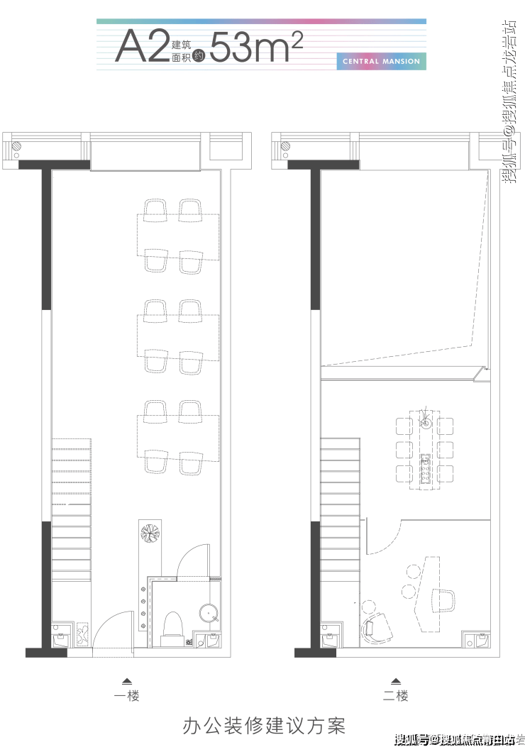
灵动空间,功能随心百变
建面约35-59㎡百变复式金寓,低总价低首付,不限购不限贷。4.5米层高,买一层送一层,宜商宜租宜自用,多种用途潜力无限。
【SOHO户型鉴赏】
编辑

————————————————————
【投资价值】
小投入大未来,抢入二环投等舱
更低门槛首次支付19万起当二环房东,明年9月交房即收租,市场同类型公寓租金3000+元,低门槛轻松拥有二环芯资产。稳健资产福州零门槛落户,5年目标引入人才100万,居住需求不断增加,电商、高科技大势所趋,创业需求旺盛。公寓在手,财富稳健攀升。可观回报建面约41㎡总价73万起百变复式金寓租金约3000+元,自有资金年化回报率10%,投资回报秒杀其他理财。
编辑
————————————————————
【多元业态】
4.5米层高,满足多元业态
声明:本文由入驻焦点开放平台的作者撰写,除焦点官方账号外,观点仅代表作者本人,不代表焦点立场。
