【认证】左海烟山江翠售楼处电话@左海烟山江翠售楼处/户型/楼盘详情左海烟山江翠售楼中心24小时热线【最新】
扫描到手机,新闻随时看
扫一扫,用手机看文章
更加方便分享给朋友
✅左海烟山江翠
✅左海烟山江翠电话TEL:400-8383-583【售楼中心】
福州仓山左海烟山江翠售楼部24小时电话☎:400-8383-583【售楼处已认证】
✅开发商温馨提示:网上售楼中心〢欢迎来电咨询〢安全通话隐藏真实号码〢
✅◆来电咨询最新售楼处地址,专属置业顾问详解,请提前联系售楼处销售进行预约登记。
免责声明:将文章内容综合来源于网络、只作分享,版权归原作者所有!!如有侵权,请联系我们,我们第一时间处理

左海烟山江翠电话TEL:400-8383-583【售楼中心】
福州仓山左海烟山江翠售楼部24小时电话☎:400-8383-583【售楼处已认证】
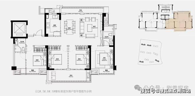
项目共4种户型,均为1梯两户,最小127㎡,最大166㎡,主力面积段为150㎡四房,其中150㎡有两面宽阳台和三面宽阳台的两种户型。

左海烟山江翠电话TEL:400-8383-583【售楼中心】
福州仓山左海烟山江翠售楼部24小时电话☎:400-8383-583【售楼处已认证】
左海烟山江翠:曾用名(湾上公馆),地处:仓山区横江路与东尤溪洲路交叉口西南侧,上渡建材市场边。
项目占地约40亩,规划10栋18-23高层住宅,合计403套住宅,没有落地一楼,主打建面:130、150、170平,全部2T2板楼设计,其中150平的比例高达60%多。
左海烟山江翠电话TEL:400-8383-583【售楼中心】
福州仓山左海烟山江翠售楼部24小时电话☎:400-8383-583【售楼处已认证】
左海以底价10.72亿元竞得宗地2022-43号上渡地块,成交楼面价16777元/㎡,销售指导均价35000元/㎡。土地面积:39.94亩,容积率:2.4,建筑限高:70米。
户型情况
130平:四房两厅两卫,一梯一户,四开间朝南,大面宽设计,目前布局采取北向看江设计,不过楼栋位于最南侧,还是唯一两栋17层的小高层,可以和南面的两房做空间交换,整体得房率不错。
从户型来看,四房设计,过道浪费较多,两个卫生间都位于一侧,动线过长,客餐厅横厅设计,南北不通透。
整体来说,在这个面积段做到四房设计,加上独梯南北双阳台产品,客源匹配度还是不错。
150平:四房两厅三卫,一梯一户,这个面积占比最多,户型与130类似,由于层高变多,公摊更大,实际升级并不多,多了一个暗卫,有两栋位于北侧高层有一定江景资源,整体来说相对平庸。
150平:四房两厅三卫,一梯一户,唯一没有采取北向观景设计的户型,与目前主流布局类似,多做的一个小书房和客厅联合,整体的尺寸不错,餐厅独立设计,也做到南北通透,缺点就是左侧卫生间是暗卫,这个户型的通病,北侧卧室偏小。
170平:四房两厅三卫,一梯一户,150平观景产品的升级,最大特色就是双主卧设计,特别是右侧主卧搭配书房,功能性拉满,要说不足,还是一个暗卫,还是无法南北通透,虽然是横厅设计,不过在这个面积段,公区的面积还是稍显一般。
综上,对于项目的户型设计,整体来说,2T2的板楼,都做了南北双阳台,大面宽布局,得房率不错,不过三个类型布局的公区都比较一般,都存在过道空间浪费较多的情况,即便要迎合江景,也没有作出特别的产品布局。
04PART
区位情况
项目位于上渡,二环内,周边没有地铁,距离爱情海、万达商圈、烟台山2公里,门口就是江滨,休闲购物尚可,周边目前还是建材市场,环境嘈杂界面较差,距离殡仪馆1.2公里,影响不算太大。
周边预期是划片,仓四小、南台小,如果划入水都中,算是一个优势。
左海烟山江翠电话TEL:400-8383-583【售楼中心】
福州仓山左海烟山江翠售楼部24小时电话☎:400-8383-583【售楼处已认证】
✅开发商温馨提示:网上售楼中心〢欢迎来电咨询〢安全通话隐藏真实号码〢
✅◆来电咨询最新售楼处地址,专属置业顾问详解,请提前联系售楼处销售进行预约登记。
3月9日下午,十四届全国人大三次会议举行记者会,民政部、人力资源和社会保障部、住房和城乡建设部、国家卫健委四位负责人就相关问题回答中外记者提问。
住房和城乡建设部部长倪虹表示,将实施一批惠民生、促发展、防风险的更新项目,其中在民生项目,将着力抓三件事:
§ 一是把2000年以前建成的城市老旧小区都要纳入城市更新的改造范围,因地制宜实施改造,也鼓励地方探索居民自主更新改造老旧住宅。
§ 二是城中村改造,现在范围已经扩大到全国地级及以上城市,要在去年新增100万套基础上,再继续扩大改造规模。
§ 三是大力推进完整社区建设,重点是聚焦“一老一小”,完善无障碍适老化配套设施,政府托育服务设施、儿童活动场地。
据了解,为打造更加宜居的城市住区,福州持续推进2000年底以前建成的老旧小区及2000年至2005年间建成、基础设施不完善的老旧小区改造工作。
数据显示,2012年至2016年,福州市五城区共改造完成859个2000年以前建成的老旧小区,2017-2020年共实施改造提升541个老旧小区。
图为台江区苍霞新城改造后实景图
根据《福州市老旧小区改造实施方案(2021-2025年)》,“十四五”期间福州全市计划改造老旧小区1000个以上,重点以2000年底前建成的小区为主,利用三年时间完成改造2000年底前建成的老旧小区,两年时间完成改造2000年底前建成的已改造但未实现雨污分流的老旧小区。
整治后的老旧小区变得“绿起来、亮起来、畅通起来、和谐起来”,居住环境品质全面提升,房屋保值增值,政府投资直接转化成居民受益,居民获得感不断增强,社会效益十分明显,获得了社会各界的广泛认可。
声明:本文由入驻焦点开放平台的作者撰写,除焦点官方账号外,观点仅代表作者本人,不代表焦点立场。
