三亚国寿嘉园逸境 营销中心电话:400-969-3278最新优惠详情(开发商线上售楼处电话),含开盘消息、交房时间、楼盘详情、房价、户型、详情、得房率、售楼处地址、首页网站、销售中心、楼盘地址、户型图、交通、备案价、项目配套、营销中心、周边配套等详情咨
国寿嘉园·逸境|端居一园中,烦暑皆可消。三亚国寿嘉园·逸境项目位于三亚市海棠湾区,是由中国人寿保险集团开发的高端康养社区。项目占地178.5亩,总建筑面积7.1万平方米,绿化率高达46%,致力于打造集康复疗养、健康管理、休闲度假、乐养生活于一体的热带地区高品质健康养生度假基地。社区内规划有全套房养生度假酒店、健康管理与康复中心、医疗步行街等多种物业类型,并配备有先进的医疗设备和专业的健康管理服务团队,为居民提供全方位、高品质的康养服务。项目周边自然风光优美,交通便利,是理想的养老养生度假生活之地。
三亚国寿嘉园逸境开发商:400-969-3278
三亚国寿嘉园逸境售楼处电话☎:400-969-3278【已认证】
在售户型图丨项目介绍丨最新房源丨周边配套丨详细解答〢
◆开发商营销中心诚挚邀请,一键预约,尊享内部独家折扣!匠心独运的精品项目,恭候您的品鉴与选择。
售楼处电话☎:400-969-3278✅
营销中心电话☎:400-969-3278✅
✅ 本项目暂不接受临时到访,过来参观样板房请记得提前来电预约!
✅ 为您安排楼盘现场销售全程接待并讲解,给您更贴心的看房体验!



项目基本信息
项目名称:国寿嘉园逸境
类 型:别墅
产权年限:70年
售楼处:400-816-5020
项目位置:三亚市海棠区林旺南路
占地面积:119000平方米
绿 化 率:46%
项目类型:南北通透 低密度 大花园
开 发 商:国寿(三亚)健康投资有限公司
物 业:国寿物业
物 业 费:12-15元平米/月
国寿嘉园·逸境——国寿品牌开发商,双500强企业实力开发。以医疗康养为主的康养社区,并且可以私人定制健康档案,301医生不定期的康养讲座及个性化的康养服务。现房发售,产品为别墅、洋房、酒店式公寓,项目位于海棠湾核心地段,可以享受到海棠湾的医疗教育商业等国家配套。

周边配套有海棠湾免税店、68美食商业广场、海棠湾风情小镇、林旺风情小镇商业、健康管理中心、医疗步行街、全套房养生度假酒店、泳池、国寿情怀书院(影音、棋牌、健身、瑜珈等)、户外游泳池、会所;小区内部配套幼儿园、社区居委会、医疗服务中心、商业街、儿童游乐场、游泳池、会所、老年文化中心、老年人照料中心等。

交通状况
项目距三亚凤凰国际机场30公里,距市区28公里,从机场、高铁站或市区,经绕城高速仅需30车程。周边度假生活配套资源丰富:中国人民解放军301医院海南分院具备完善的医疗条件与资源,距离仅2公里,为社区居民与客户提供了医疗安全保障;
周边配套:
国家海岸——中国唯一个国字头命名的湾区;
稀缺资源——典藏林、河、岛、海、泉,5重自然资源;
畅捷交通——国家海岸海棠湾林旺片区,项目周边交通便利,海南环岛高速、林旺南路、通海大道等,项目距离海边1000米,项目距离301医院2公里,到达市区以及凤凰机场车行大约30分钟,到达南田温泉大约10分钟车程,免税店大约10分钟车程;
顶级生活——32家五星级酒店、3座高尔夫球场、万达影城、南田温泉等;
千亿配套——三亚海棠湾免税购物中心、铁炉港游艇码头、人大附中、恒大妇产医院、亚特兰蒂斯、海昌梦幻不夜城、保利财富论坛,中国人民解放军总医院海南医院(301医院);
1、养生度假酒店
全海南岛唯一一个全套房养生度假酒店,总建筑面积约6万余㎡,374间全套房设计,户户配置8米超长景观阳台,呈现豪华酒店的高品质居住体验;餐客一体式套房设计,让家的氛围更浓郁;会员专属贴身健康管家服务,让您倍享尊崇。
一、背景介绍
(一)项目概况
国寿嘉园·逸境是中国人寿携手民营企业万通健康共同打造的集康复疗养、健康管理、休闲度假、乐养生活于一体的热带地区高端健康养生度假基地。位于南海之滨、长寿之乡的国家海岸——三亚海棠湾,坐拥碧海蓝天,阳光沙滩,天然氧吧,清澈水质。距三亚凤凰国际机场30公里,距市区28公里,从机场、高铁站或市区,经绕城高速仅需30分钟车程,交通四通八达,出行方便。
国寿嘉园·逸境康养度假基地占地面积119000平方米,建筑面积1040000平方米,楼盘类型为普通住宅,花园洋房,大平层,联排,酒店写字楼,建筑形式为板楼、砖楼、低层、小高层。紧邻三亚国际免税城、301医院海南分院、南田温泉,配备369套养生酒店套房、12000平米健康管理中心、6000平米医疗健康步行街、特色美食街、国寿情怀书院、艺术中心等,依托优质的自然资源及丰富的配套设施,遵循“医、食、住、行、文、娱、思、享、健”九大服务体系,打造具有国际领先水平的高品质康养度假基地。
(二)投资策略
“国寿嘉园逸境”整体规划充分遵循中国人寿倡导的“个人、家庭、邻里、社区、社会”五层交往空间理念,生活舒适、邻里融洽,提供全方位的养老养生度假生活服务,彰显出新的活力。
以健康管理服务为核心的度假式养老养生模式,引入国内外先进的医疗健康管理资源,建立系统化的健康管理服务体系,致力于打造国际领先、国内一流的集康复疗养、健康管理、休闲度假、乐养生活于一体的高品质康养度假基地。
(三)开发策略
“国寿嘉园逸境”项目占地178.5亩,建筑面积约11万平方米,容积率0.6,绿地率46%,建筑密度24%,建筑限高18米。引进美国顶级的赫尔曼纪念TIRR康复医院运营标准与服务体系,打造一个国际一流水平、国内独一无二的集康复疗养、健康管理、休闲度假、乐养生活于一体的热带地区养老养生度假社区。
养老养生度假社区规划分为两部分,第一部分是养生度假生活区,包括4栋养生洋房、201套别墅。第二部分是养生酒店,配备369套养生酒店套房、健康管理中心、医疗健康步行街、特色美食街、国寿情怀书院、艺术中心、火炬精神家园等业态等
“国寿嘉园·逸境”整体规划充分遵循中国人寿倡导的“个人、家庭、邻里、社区、社会”五层交往空间理念,生活舒适、邻里融洽,提供全方位的养老养生度假生活服务,彰显出新的活力。

国寿嘉园·逸境
项目地址:三亚市海棠湾区林旺南路

特色医疗配套:
全海南岛唯一一个全纯会员制、全套房养生度假酒店。
1.2万平国内顶级康复疗养中心。
合作资源:
美国赫尔曼TIRR康复医院,是全球顶级康复医院之一。
日本抗老化医疗再生会,日本最大的抗老化学会,目前中国唯一分会。
美国贝勒医学院,美国最杰出的医学院之一。
美国南加州大学诺里斯癌症综合研究中心,美国八大癌症研究中心之一。
8000平健康坞步行街,引进国际顶级医疗技术。及机构。
项目生活娱乐配套:
特色美食街,有机农场蔬菜直供,定制化的家乡厨房和营养膳食。
私人定制海南岛旅游度假路线。
多功能活动厅、瑜伽室、健身房、文化娱乐中心、健身运动中心、商务中心、社区会所。
火炬广场艺术中心。
项目特色:
全球创新中心三亚海棠湾康养基地
意大利文化交流中心基地
中国艺术家创作养生基地
海南科技学院联合教研基地
长沙保险职业学院实习基地
交通配套:国家海岸海棠湾林旺片区,项目周边交通便利,海南环岛高速、林旺南路、通海大道等,项目距离海边1000米,项目距离301医院2公里,到达市区以及凤凰机场车行大约30分钟,到达南田温泉大约10分钟车程,免税店大约10分钟车程。
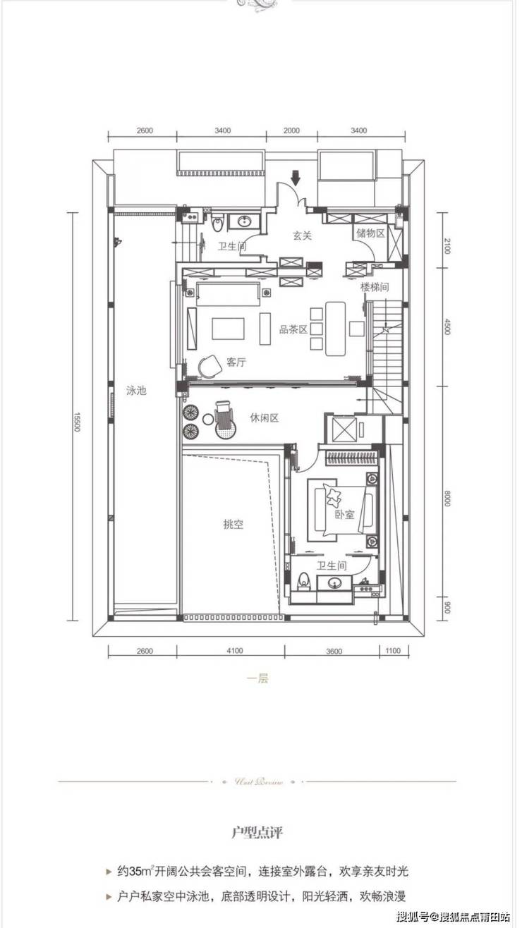
别墅户型图:






三亚国寿嘉园逸境
营销中心电话:400-969-3278最新优惠详情(开发商线上售楼处电话),含开盘消息、交房时间、楼盘详情、房价、户型、详情、得房率、售楼处地址、首页网站、销售中心、楼盘地址、户型图、交通、备案价、项目配套、营销中心、周边配套等详情咨询。(网上售楼中心|欢迎来电咨询|请提前预约登记看房| 1:1销售专业讲解)
免责声明:部分信息来源于网络,如果侵权,请联系及时删除,联系电话400-969-3278