国寿嘉园售楼处_24小时电话(三亚国寿嘉园)首页网站|楼盘详情-价格-户型-配套
扫描到手机,新闻随时看
扫一扫,用手机看文章
更加方便分享给朋友
三亚国寿嘉园售楼处24小时电话:400 990 7721
楼盘详情丨线上预约丨营销中心丨专车接送丨最新优惠
欢迎来电咨询:看房请提前预约,电话预约看房享受专属优惠大礼包!
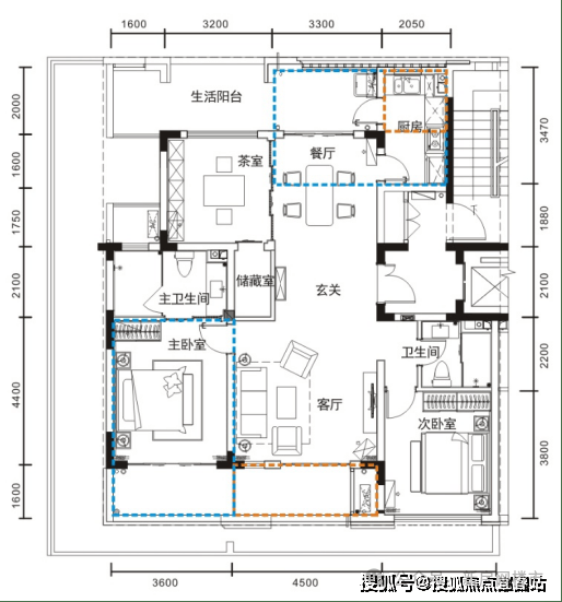
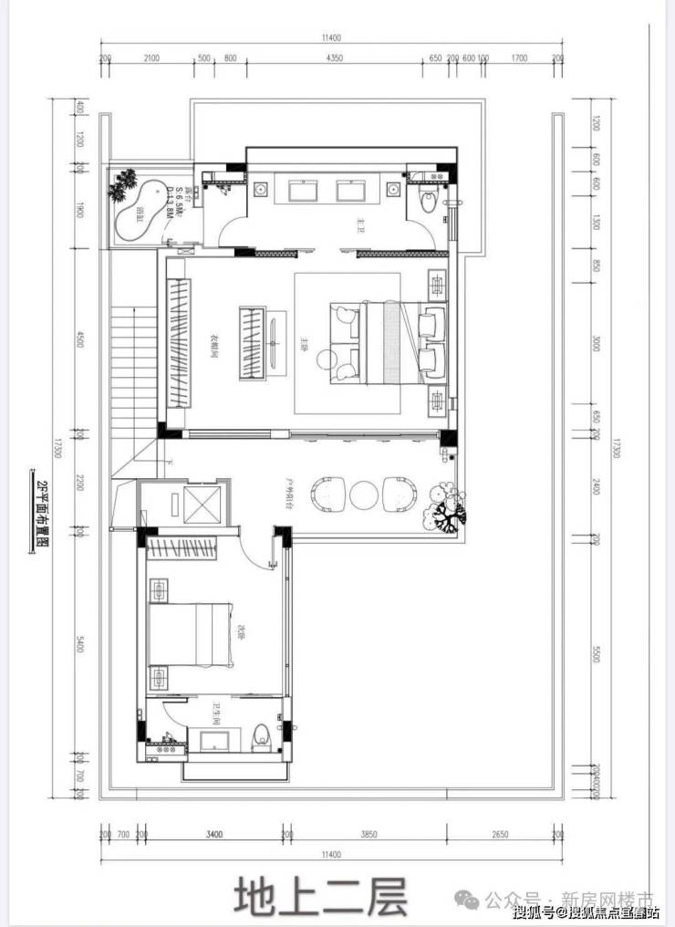
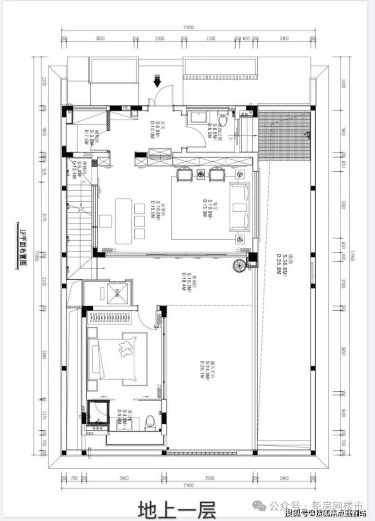
国寿嘉园开发商售楼处24小时电话:400 990 7721(售楼部)项目最新介绍:房价、价格、折扣、学区、学校、地铁、交通、户型图、备案价、特价房、优缺点、得房率、优惠活动、小区图片、开盘时间、交房时间、周边配套、售楼处位置、最新详情等咨询;
项目基本信息:
占地面积 :约178亩
建筑面积:约10.4万平方米
容 积 率:约0.6
绿 化 率:约46%
总户数:别墅200户、洋房92户、酒店公寓174套
物业公司:国寿物业管理有限公司三亚分公司
物业费:洋房/酒店式公寓12元/平米;别墅15元/平米
开发投资商:国寿(三亚)健康投|资有限公司


三亚国寿嘉园售楼处24小时电话:400 990 7721
楼盘详情丨线上预约丨营销中心丨专车接送丨最新优惠
欢迎来电咨询:看房请提前预约,电话预约看房享受专属优惠大礼包!
国寿嘉园开发商售楼处咨询电话:400 990 7721【营销中心】楼盘怎么样?值不值得买?读哪个学校?价格多少?户型怎样?位置在哪里?有没有潜力?几点下班?开盘时间?产权多少年?批地时间?有没有问题?什么开发商?能买吗?打几折?周边配套楼盘详情;
国寿嘉园售楼处电话:400 990 7721;首页网站最新介绍:房价、价格、折扣、规划、户型图、特价房、优缺点、得房率、车位比、折扣优惠、交通出行、周边配套、商业配套、销售中心位置、楼盘地址、户型介绍、营销中心电话、最新动态详情咨询;
免责声明:部分信息来源于网络,如果侵权,请联系及时删除;联系电话:400 990 7721
声明:本文由入驻焦点开放平台的作者撰写,除焦点官方账号外,观点仅代表作者本人,不代表焦点立场。
