榕发悦乐郡售楼处-榕发悦乐郡售楼处2025最新发布-售楼处优惠—榕发悦乐郡售楼处电话
扫描到手机,新闻随时看
扫一扫,用手机看文章
更加方便分享给朋友
榕发悦乐郡:位于晋安区长乐北路与塔头路交叉口东南角。
福州榕发悦乐郡售楼部热线:400-8556-400【☎售楼中心已认证✅】
榕发悦乐郡开发商热线电话:400-8556-400【☎营销中心已认证✅】
✅本项目暂不接受临时到访,过来参观样板房请记得提前来电预约!
✅为您安排楼盘现场销售全程接待并讲解,给您更贴心的看房体验!

若有中介报价过低,请及时与售楼中心核对真假,避免上当!开发商热线400【售楼处首页已认证】
◆开发商营销中心诚挚邀请,一键预约,尊享内部独家折扣!匠心独运的精品项目,恭候您的品鉴与选择。
免责声明:将文章内容综合来源于网络、只作分享,版权归原作者所有!!如有侵权,请联系我们,我们第一时间处理
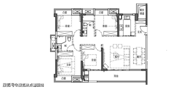
项目分南北两区,北地块A区,规划3栋24层左右的住宅,共184套,配建一栋商业楼,南地块B区,规划2栋15层左右的小高层住宅,共83套,主推产品:110,130,152,167平米。

02
PART
楼盘土拍
2020年10月28日,福州建发以底价9.84亿拿下宗地2020-48号,楼面价约为15849元/平,地块出让面积约39.13亩。
北侧A地块面积29亩,容积率2.5(其中商业建筑面积不少于19000平方米,不超过20000平方米),建筑限高80米,配建的2000平居家养老服务中心由指定单位按6929元/平回购。
南侧B地块面积10亩,容积率2.0(其中商业建筑面积不少于2500平方米,不超过3500平方米),建筑限高60米。

分析:2020年下半年,榕发以底价拿下了二环内塔头片区的纯商地块,对于这次拿地也比较神奇,仅榕发一家参与,所以导致在安商横行,二环内供应短缺的背景下,地块还是被底价拿下,对比上一场土拍,厦门建发以2.8W拿下东二环的地王,可以说差距非常大。
对于地块而言,面积不大,还被电信大楼隔断,变成两个小地块,加上还要配建商业,导致社区也不成型。不过由于是依靠地铁,加上区位优势,去化没有压力。目前传出的户型也主要以大平层为主,可以说对比祥浦苑和观湖郡,该盘可能才能算榕发真正的改善产品。
03
PART
户型情况
130平米:四房两厅两卫,位于B区,一梯一户,四开间朝南,比较主流的大面宽布局,从户型看卧室有搭配飘窗,做赠送面积。主要缺点在于客厅纵深过小,加上背景墙被次卧门隔断,空间感一般,同时北侧厨房和入户门虽然有做采光,但是也无法做到完全南北通透,同时餐厅的空间对于130平米略显局促。

111平米:三房两厅两卫,位于A区,两梯三户的中户,四开间朝南,北面紧靠电梯,南北不通透,厨房位于南侧,由于有阳台导致采光仅仅依靠北侧窄小的风井,客餐厅横厅设计,空间感较好,由于是连廊中户,加上东端头需要进出乘坐电梯,隐私影响较大,北侧的次卧采光也仅仅依靠右侧的小窗,同时111平米做三房,主卧没有L型衣柜。

131平米:四房两厅两卫,位于西端头,四开间朝南,大面宽布局,客餐厅横厅设计,阳台的面宽比较亮眼,劣势在于入户玄关北侧无法开窗,加上次卧的格挡,仅能通过U型厨房做南北对流,同时131的主卧依然没有L型衣柜,同时由于中户的凸出,西端头尤其是客厅部分,早上采光会有一点影响。

153平米:4.5房两厅两卫,位于东端头,靠连廊出入,四开间朝南,客厅搭配书房,空间感略强,阳台的面宽同样亮眼。目前在餐厅右侧规划了卧室,导致餐厅空间略显局促,加上虽然玄关和卧室都有北侧窗户,但是南北还是无法完全通透,如果房间数要求不多,可以考虑北侧卧室改成餐厅,原餐厅做中岛。

167平米:4.5房两厅三卫,两梯两户,大面宽布局,比较主流,客餐厅南北通透,阳台面宽依旧亮眼,缺点在于右侧次卧的卫生间是暗卫,不过也是这种布局的通病,主卧虽然做了L型衣柜,不过对于167的产品,主卧的功能还是略显简单。

分析:对于这次悦乐郡的户型,可以说也是榕发的一大改变,作为福州国企以建设安置房起步,在这次的户型上,基本都采用了大面宽布局,非常匹配面前市场方向,同时阳台的面宽可以说比市场的大平层更亮眼。
福州榕发悦乐郡售楼部热线:400-8556-400【☎售楼中心已认证✅】
榕发悦乐郡开发商热线电话:400-8556-400【☎营销中心已认证✅】
✅本项目暂不接受临时到访,过来参观样板房请记得提前来电预约!
✅为您安排楼盘现场销售全程接待并讲解,给您更贴心的看房体验!
为探索构建房地产发展新模式,支持城乡居民刚性和改善性购房需求,实现“居者有其屋”目标,政和县出台“共有产权”房政策,已于2024年10月1日起实施。
01 此次“共有产权”房政策支持对象有哪些?
在政和县域范围内工作或生活的,无商品住房或仅有1套商品住房需要改善住房条件的家庭(个人)。
02 哪些房源列入支持范围?
政和县域范围内房地产开发企业自愿参与的存量新建商品住房现房,或已批预售、风险可控的期房。目前已有4家房地产开发企业参与“共有产权”房政策,分别是新景书香苑、奥体佳苑、水云筑和同心嘉园。
03 此次“共有产权”房政策支持标准是什么?
1.县住建局牵头负责协调房地产开发企业,确定具体楼盘促销价格和其他优惠措施(含一房一价)。
2.县级统筹1亿元(以房票形式),用于支持购买“共有产权”房对象支付首付款(按政策规定的最低首付比例,每套最高不超过20万元,南平市与县级等比例出资,下同),购房无贷款的参照商业银行按揭贷款的最低首付比例执行。
3.其他优惠政策:购买“共有产权”房对象,符合条件的,可同步享受我县家电消费、家装厨卫“焕新”等促销政策。
04 如何确定自己是否具有“共有产权”房的购房资格?
购房人可在政和县不动产登记窗口或“掌上南平”APP上申请,由县不动产登记中心依申请确认“共有产权”购房资格,并出具不动产登记信息证明。
05 如何购买“共有产权”房?
1.购房人在县(或市、区)不动产登记窗口或“掌上南平” APP确认购房资格。
2.购房人与房地产开发企业签订购房合同(若为期房,则签订购房意向书);购房人与实施主体同步签订《购买“共有产权”房补充协议》
3.实施主体根据购房合同和按揭贷款方式(若为期房,根据购房意向书和按揭贷款方式),向房地产开发企业开具相应比例的房票
4.房地产企业协助购房人向相关商业银行或公积金中心办理相关申请审批手续;县不动产登记中心根据实施主体提供的购房人房产信息和《补充协议》,将房产予以限制
06 “共有产权”房使用约定有哪些呢?
1.购房人所购“共有产权”房可随时回购、上市交易,但须在结清实施主体支付的“共有产权”房票资金后才能办理产权过户、变更等相关手续。
2.购房人按照100%房屋产权享受业主权利,并承担100%业主责任义务,全额承担购房所产生的各项税费(包括但不限于契税、不动产登记费、住宅专项维修基金、物业费、水电气开户费等)。
07 “共有产权”房回购的约定有哪些呢?
1.购房户按照100%房屋产权享受业主权利,所购“共有产权”房可购(回购)、可售(上市交易)、可租(向市、县实施主体承租)、可住(居住使用)。
2.购房户在购房之日起10年内回购或上市交易的,在结清市、县实施主体支付的“共有产权”房票本金后,即可办理产权过户、变更等相关手续。
3.购房户在购房之日起10年-20年内回购或上市交易的,由市、县实施主体或购房户委托第三方评估(按购买时毛坯或精装房产状况评估),按市、县实施主体拥有的产权比例评估价回购。回购后即可办理产权过户、变更等相关手续。
4.购房户在购房之日起20年后未回购或上市交易的,应向市、县实施主体承租其持有该房屋产权部分,并按照市、县实施主体支付的“房票”本金,以当年一年期银行定期存款利率标准支付房租,每年一结。此后,如购房户提出回购或上市交易,仍按第3点评估方式执行。
声明:本文由入驻焦点开放平台的作者撰写,除焦点官方账号外,观点仅代表作者本人,不代表焦点立场。
