福州双溪源筑项目配套规划?楼盘小区优缺点详情?恭迎品鉴!
扫描到手机,新闻随时看
扫一扫,用手机看文章
更加方便分享给朋友
福州【双溪源筑】
在售户型图丨项目介绍丨最新房源丨周边配套丨详细解答〢
◆开发商营销中心诚挚邀请,一键预约,尊享内部独家折扣!匠心独运的精品项目,恭候您的品鉴与选择。
开发商24小时电话☎:400-108-1003【售楼处已认证】✨✨✨
售楼处24小时电话☎:400-108-1003【售楼处已认证】✨✨✨
营销中心24小时电话☎:400-108-1003【售楼处认证】✨✨✨
售楼中心24小时电话☎:400-108-1003【售楼处已认证】✨✨✨
销售中心24小时电话☎:400-108-1003【售楼处已认证】✨✨✨
✅本项目暂不接受临时到访,过来参观样板房请记得提前来电预约!
✅为您安排楼盘现场销售全程接待并讲解,给您更贴心的看房体验!
总价95万起 住实景准现房,温泉别院
双溪源筑建面约87-200㎡温泉叠院/合院/联排
有山有水有温泉,有天有地有庭院
【项目区位】:位于福州北贵安温泉旅游度假区核心位置
区位图如下:

楼栋分布图:
【产品规划】
福州罕有纯低密新中式温泉别院
本项目在售产品为商业别墅,产权40年,首付50%
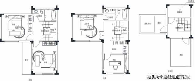
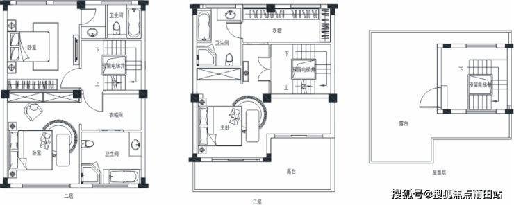
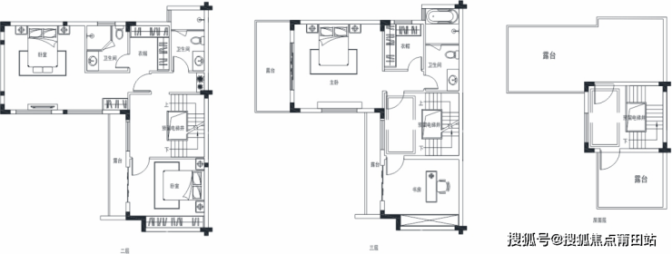
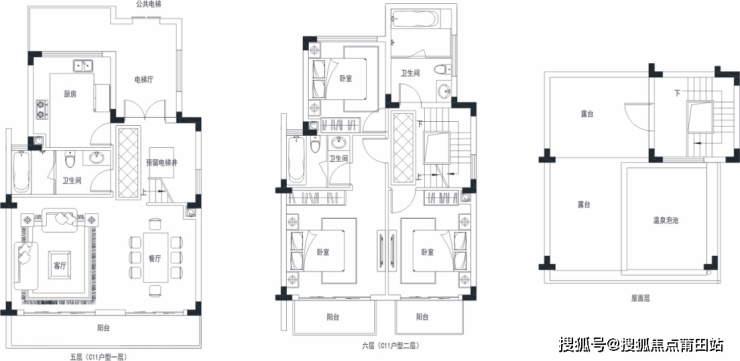
户型鉴赏
(样板间照片在笔记最后)
1、竖联排
建筑面积约127㎡ 新中式纯低密 竖联排


2、横联排
建筑面积约127㎡ 新中式纯低密


3、合院
建筑面积约152㎡ 新中式纯低密



4、30#、31#楼下叠:
建筑面积约99㎡ 新中式纯低密叠院


5、中叠:
建筑面积约87㎡ 新中式纯低密叠院

6、上叠:
建筑面积约87㎡ 新中式纯低密叠院

项目价值解析
【区域交通潜力】:
近邻北二通道与绕城高速(四环)!
北二通道建成通车后,将实现无红绿灯、无收费、快速直达福州五四北,无缝接驳地铁1号线,交通便捷,实现同城化
【自然生态环境】双溪源筑择址誉有“福州后花园 天然大氧吧”城北贵安,森林覆盖率高达85%,空气中负氧离子的含量极高。项目紧临敖江(福州二级水资源保护区)与乾头河,观山亲水,生态环境天赋优美。

▲项目实景图
【千载源脉温泉】贵安作为全国闻名的“温泉之乡”,拥有丰富优质的地热资源,并早在唐朝就得到开发和利用。

▲项目实景图
【奢享鼎配生活圈】占踞贵安核心位置,与贵安新天地仅一桥之隔,项目周边拥有贵安温泉高尔夫、西溪温泉森林公园等。
【三坊三街六巷礼制格局 】取意中国里坊制度活化石“三坊七巷”的传统建筑格局为蓝本,以“温泉山水”为主题结合景观元素
样板房照片:



双溪源筑
在售户型图丨项目介绍丨最新房源丨周边配套丨详细解答〢
◆开发商营销中心诚挚邀请,一键预约,尊享内部独家折扣!匠心独运的精品项目,恭候您的品鉴与选择。
开发商24小时电话☎:400-108-1003【售楼处已认证】✨✨✨
售楼处24小时电话☎:400-108-1003【售楼处已认证】✨✨✨
营销中心24小时电话☎:400-108-1003【售楼处认证】✨✨✨
售楼中心24小时电话☎:400-108-1003【售楼处已认证】✨✨✨
销售中心24小时电话☎:400-108-1003【售楼处已认证】✨✨✨
✅本项目暂不接受临时到访,过来参观样板房请记得提前来电预约!
✅为您安排楼盘现场销售全程接待并讲解,给您更贴心的看房体验!
声明:本文由入驻焦点开放平台的作者撰写,除焦点官方账号外,观点仅代表作者本人,不代表焦点立场。
