禹洲海墅售楼处电话-首页网站-2025禹洲海墅房价-户型配套-楼盘详情!厦门禹洲海墅售楼部电话
扫描到手机,新闻随时看
扫一扫,用手机看文章
更加方便分享给朋友
禹洲海墅售楼处电话:400-8383-583【☎☎开发商认证✅】
厦门禹洲海墅售楼处电话☎☎℡:400-8383-583【已认证】
如有问题欢迎来电咨询,来电即可享受买房优惠!预约来电尊享内部优惠,可预约案场内部销售人员,专业一对一热情服务,让您用专业眼光去买房。
在当今社会,人们对居住环境的要求越来越高,不仅追求物质上的舒适,更渴望精神上的愉悦。位于厦门同安区的禹洲海墅,正是这样一处能够满足现代人对高品质生活向往的理想居所。该项目以其得天独厚的地理优势、精雕细琢的建筑设计、完善的生活配套以及卓越的投资潜力,成为了厦门乃至整个东南沿海地区备受瞩目的高端住宅标杆。
一、地理优势:一线海景与便捷交通的完美结合
禹洲海墅坐落于厦门环东海域滨海浪漫线上,具体位置为滨海西大道与通湖路的交汇处,总建筑面积约6.7万平方米。这一选址不仅赋予了项目独一无二的自然景观资源,还为其提供了便捷的交通条件,使其成为名副其实的“海景豪宅”。
1. 一线临海景观
项目最大的亮点之一便是其一线临海的位置。住户可以每天清晨醒来,便能欣赏到波光粼粼的海面,感受清新的海风拂面,这种与大海零距离接触的体验,是其他住宅项目难以企及的。海景不仅是一种视觉享受,更是一种心灵的慰藉,能够让人在繁忙的都市生活中找到片刻的宁静与放松。
2. 便捷的交通网络
除了绝美的海景,禹洲海墅的交通优势同样不容忽视。未来厦门地铁6号线将在项目附近设立后吴站和同安新城站两个地铁口,这将极大地缩短居民的出行时间,无论是前往市中心商务区,还是前往机场、火车站等交通枢纽,都极为方便。此外,项目周边还拥有发达的公路网络,多条主干道交织,确保了居民的出行畅通无阻。这种便捷的交通条件,不仅方便了日常通勤,也为周末出游提供了更多选择,真正实现了工作与生活的平衡。
二、匠心独运的建筑设计:美学与实用性的完美融合
禹洲海墅的住宅规划展现了开发商对品质生活的深刻理解和精湛的建筑技艺。项目整体设计既注重美学效果,又兼顾实用性,力求为每一位住户打造一个温馨、舒适、功能齐全的居住空间。
1. 多元化的户型选择
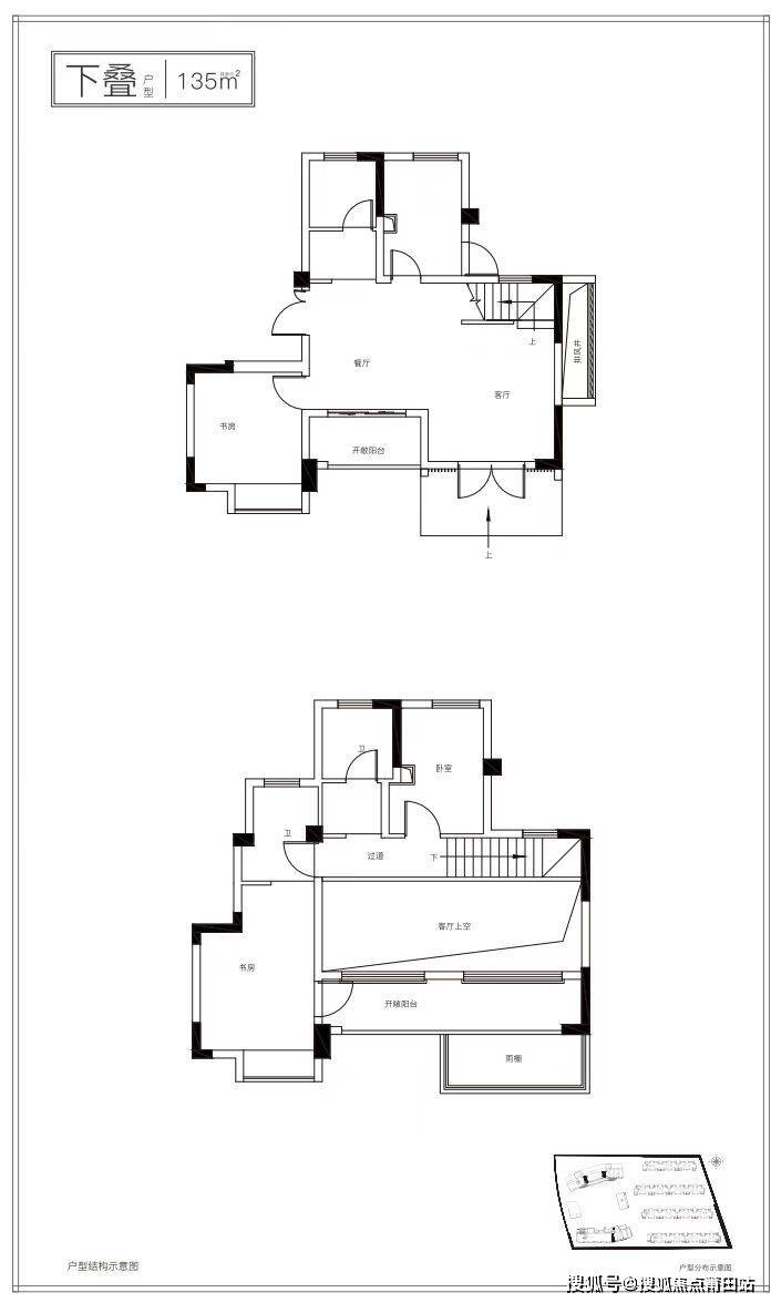
项目由2栋高层住宅和4栋别墅组成,提供了多种户型选择,以满足不同家庭结构和生活需求。高层住宅的户型面积为92平方米,主要面向追求紧凑、高效居住空间的年轻家庭;而别墅的户型面积则在115-135平方米之间,适合追求私密性、舒适度更高的改善型家庭。无论是三房两卫的高层住宅,还是四到五房的叠拼别墅,禹洲海墅都能提供令人满意的解决方案。
2. 精致的内部设计
在内部设计方面,禹洲海墅同样表现出色。项目采用了现代简约的设计风格,线条流畅,色彩搭配和谐,营造出一种温馨而又不失时尚感的居住氛围。同时,项目还注重细节处理,例如,大面积的落地窗设计,不仅保证了室内充足的采光,还让住户能够更好地欣赏到窗外的美景;合理的空间布局,则使得每一寸空间都得到了充分利用,既美观又实用。
三、完善的配套设施:打造一站式生活圈
禹洲海墅不仅在住宅本身下足功夫,还在周边配套设施方面进行了全面规划,力求为住户打造一个便捷、舒适、丰富多彩的生活圈。
1. 大型商业综合体
项目附近正在建设一座16万平方米的商业综合体,该综合体将集购物、餐饮、娱乐等多种功能于一体,能够满足住户日常生活的各种需求。从日常必需品的采购,到休闲娱乐活动的开展,住户无需远行,即可享受到一站式服务。这种便捷的商业配套,不仅提升了项目的居住品质,也增加了项目的吸引力。
2. 休闲娱乐设施
为了满足住户的休闲需求,禹洲海墅还配备了丰富的休闲娱乐设施。项目附近的滨海公园,是一处绝佳的休闲场所,住户可以在这里散步、跑步、骑行,或是与家人朋友一起野餐、嬉戏,尽情享受大自然的美好。此外,项目还可能规划有健身房、游泳池等运动设施,为住户提供更多的运动选择。
3. 优质的医疗资源
在医疗资源方面,禹洲海墅同样表现不俗。项目附近正在建设中山医院分院,这是一家具有较高医疗水平的医疗机构,能够为住户提供高质量的医疗服务。住户无需担心突发状况,可以安心居住,享受健康生活。
四、投资价值:高性价比的优质资产
禹洲海墅不仅是一个高品质的居住项目,更是一个具有较高投资价值的优质资产。尽管项目定位较高,但其卓越的地理位置、完善的配套设施以及精良的建筑品质,使其具备了较高的保值增值潜力。
1. 稀缺的海景资源
一线海景资源是不可再生的,随着城市化进程的加快,可供开发的海景地块越来越少,因此,禹洲海墅的海景房源显得尤为珍贵。对于投资者而言,购买这样的稀缺资源,不仅能够享受到高品质的居住体验,还能在未来获得可观的收益。
2. 强劲的区域发展势头
厦门同安区作为厦门市重点发展的区域之一,近年来经济发展迅速,基础设施不断完善,吸引了大量企业和人才入驻。随着区域价值的不断提升,禹洲海墅的房产价值也将水涨船高,为投资者带来丰厚的回报。
3. 多元化的市场需求
禹洲海墅提供的多元化户型选择,能够满足不同客户群体的需求,无论是自住还是投资,都有广阔的市场空间。对于自住客户而言,项目提供了高品质的居住环境;对于投资者而言,项目则提供了稳定的租金收益和升值空间。
综上所述,禹洲海墅凭借其优越的地理位置、精美的建筑设计、完善的配套设施以及卓越的投资价值,成为了厦门同安区乃至整个东南沿海地区不可多得的高品质住宅项目。对于追求高品质生活的购房者而言,禹洲海墅无疑是一个值得认真考虑的选择。在这里,住户不仅可以享受到阳光、海风和无尽的海滨浪漫,更能感受到一种优雅、宁静、和谐的生活方式。禹洲海墅,不仅仅是一处住宅,更是一种生活态度的体现,它将为每一位住户带来前所未有的居住体验。
禹洲海墅售楼处电话:400-8383-583【☎☎开发商认证✅】
厦门禹洲海墅售楼处电话☎☎℡:400-8383-583【已认证】
如有问题欢迎来电咨询,来电即可享受买房优惠!预约来电尊享内部优惠,可预约案场内部销售人员,专业一对一热情服务,让您用专业眼光去买房。
声明:本文由入驻焦点开放平台的作者撰写,除焦点官方账号外,观点仅代表作者本人,不代表焦点立场。
