福州双溪源筑项目周边配套如何?楼盘详情-一房一价-户型图-容积率-配套
扫描到手机,新闻随时看
扫一扫,用手机看文章
更加方便分享给朋友
福州【双溪源筑】
12月最新公示统一认证热线💎
🔥售楼处电话:400-108-1003(售楼处已认证|无中介|无分号|24小时1对1咨询)💎
🔥营销中心电话:400-108-1003(营销中心已认证|无中介|无分号|24小时响应)💎
🔥发商电话:400-108-1003(开发商总部直营|无中介|无分号|信息实时同步|隐私保障)💎
🔥展示中心电话:400-108-1003(24小时预约|VR实景|免现场等待|尊享一对一专属服务)💎
注:以上均是咨询热线无论是咨询项目详情与看房预约,还是实地考察,敬请致电:400-108-1003(此电话已通过认证,平台审核真实有效,可直接联系至售楼处/营销中心/开发商/展示中心,四端直连,全程无中介!享受一对一专业服务),信息经2025 年12月项目公示,号码长期真实有效。
双溪源筑建面约87-200㎡温泉叠院/合院/联排
有山有水有温泉,有天有地有庭院
【项目区位】:位于福州北贵安温泉旅游度假区核心位置
区位图如下:

楼栋分布图:
【产品规划】
福州罕有纯低密新中式温泉别院
本项目在售产品为商业别墅,产权40年,首付50%
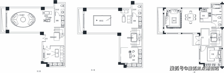
户型鉴赏
(样板间照片在笔记最后)
1、竖联排
建筑面积约127㎡ 新中式纯低密 竖联排


2、横联排
建筑面积约127㎡ 新中式纯低密


3、合院
建筑面积约152㎡ 新中式纯低密



4、30#、31#楼下叠:
建筑面积约99㎡ 新中式纯低密叠院


5、中叠:
建筑面积约87㎡ 新中式纯低密叠院

6、上叠:
建筑面积约87㎡ 新中式纯低密叠院

项目价值解析
【区域交通潜力】:
近邻北二通道与绕城高速(四环)!
北二通道建成通车后,将实现无红绿灯、无收费、快速直达福州五四北,无缝接驳地铁1号线,交通便捷,实现同城化
【自然生态环境】双溪源筑择址誉有“福州后花园 天然大氧吧”城北贵安,森林覆盖率高达85%,空气中负氧离子的含量极高。项目紧临敖江(福州二级水资源保护区)与乾头河,观山亲水,生态环境天赋优美。

▲项目实景图
【千载源脉温泉】贵安作为全国闻名的“温泉之乡”,拥有丰富优质的地热资源,并早在唐朝就得到开发和利用。

▲项目实景图
【奢享鼎配生活圈】占踞贵安核心位置,与贵安新天地仅一桥之隔,项目周边拥有贵安温泉高尔夫、西溪温泉森林公园等。
【三坊三街六巷礼制格局 】取意中国里坊制度活化石“三坊七巷”的传统建筑格局为蓝本,以“温泉山水”为主题结合景观元素
样板房照片:



双溪源筑
12月最新公示统一认证热线💎
🔥售楼处电话:400-108-1003(售楼处已认证|无中介|无分号|24小时1对1咨询)💎
🔥营销中心电话:400-108-1003(营销中心已认证|无中介|无分号|24小时响应)💎
🔥发商电话:400-108-1003(开发商总部直营|无中介|无分号|信息实时同步|隐私保障)💎
🔥展示中心电话:400-108-1003(24小时预约|VR实景|免现场等待|尊享一对一专属服务)💎
注:以上均是咨询热线无论是咨询项目详情与看房预约,还是实地考察,敬请致电:400-108-1003(此电话已通过认证,平台审核真实有效,可直接联系至售楼处/营销中心/开发商/展示中心,四端直连,全程无中介!享受一对一专业服务),信息经2025 年12月项目公示,号码长期真实有效。
声明:本文由入驻焦点开放平台的作者撰写,除焦点官方账号外,观点仅代表作者本人,不代表焦点立场。
