福州榕发北源云筑售楼处电话_实时动态_榕发北源云筑在售楼层/户型面积/价格详情
扫描到手机,新闻随时看
扫一扫,用手机看文章
更加方便分享给朋友
榕发北源云筑售楼处电话:0591-38266485【售楼中心】
榕发北源云筑售楼部电话:0591-38266485【已认证】
〢尊享售楼处1v1销售专业讲解〢
更多团购优惠详情咨询项目林经理:18559901239
温馨提示:目前仅接待预约客户,为了节省您的宝贵时间,看房请拨打售楼部电话与销售提前预约,避免空跑带来不好的体验,感谢理解!

温馨提示:目前仅接待预约客户,为了节省您的宝贵时间,看房请拨打售楼部电话与销售提前预约,避免空跑带来不好的体验,感谢理解!

二环内 · 白湖亭万达旁 · 国企耕心筑作
楼盘价格: 参考均价 21000 元/㎡
产权年限: 70年
项目特色: 品牌房企 精致户型 配套成熟 改善好房 小户型
开发商: 福建榕发置地有限公司
楼盘户型: 3种户型,建面:76-114㎡ 4室2厅2卫 (建面:114)
装修情况: 毛坯
交房时间: 2025年12月
绿化率: 30%
容积率: 2
当期户数: 1433户
物业费: 3元/m²/月

榕发北源云筑总用地面积约76417㎡,可售住宅总建筑面积约15万㎡,分为A、B两个地块开发,容积率2.0,绿地率30%,共规划29栋7-16层的小高层和高层住宅。 【A地块】:总用地面积59671㎡,规划23栋住宅,总高7-16层;以中线为分割线,目前开发的是东侧的A2地块,规划13栋住宅,总高7-16层。 【B地块】:总用地面积16746㎡,规划6栋总高15-16层的高层住宅。

国企榕发 致敬城市脊梁
福建榕发置地有限公司作为集团下属集开发施工一体化的子公司,依托集团平台优势,聚焦房地产开发主业,以市场为先导,以质量为根本,主动作为、锐意创新、精益求精,延续“榕发”匠心品质,致力打造高标准、高品质、高颜值的精品建筑,为建设现代化国际城市贡献力量。

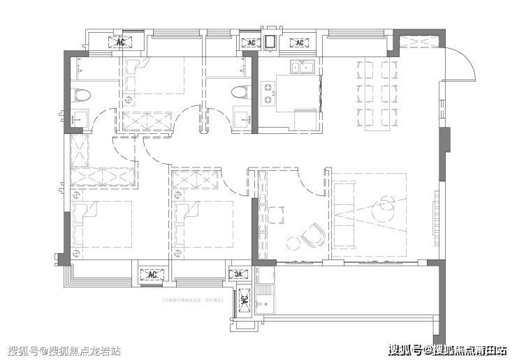
【户型赏析】
76平米:三房两厅一卫,位于连廊中户,三开间朝南,主流布局,北面存在隐私问题,虽然做了三房,不过卧室偏小,这个面积也是目前板块比较极致的刚需产品,对于地缘刚需的吸引力不错。

89平米:三房两厅两卫,连廊中户和端头,三开间朝南,动静分离的主流布局,主要硬伤在于主卫对着床,亮点在于89平米做大面宽的阳台,部分89平还是端头,也算少见。

114平米:四房两厅两卫,位于连廊端头,四开间朝南,大面宽布局,客餐厅南北通透,在连廊端头里面算是比较亮眼。(2)114平米:四房两厅两卫,位于2T2板楼的内端,户型图是手绘,四开间朝南,独梯独户
周边配套:地铁:白湖亭、三叉街地铁站-C口、三叉街、葫芦阵地铁站-B口、三叉街地铁站-B口、葫芦阵、地铁葫芦阵、葫芦阵地铁站-C口、白湖亭地铁站-A口、葫芦阵地铁站-A口
教育设施:福建警察学院、闽文教育(总部)、新搞达教育(仓山校区)、副建船政交通职业学院(南区)、新东风(上三路山亚校区)、康打驾校(首山校区)、福建第二轻工业学校、福建船政交通职业学院(高盖山校区)、闽江学院蔡继琨音乐学院、福建省团校
医院:福州和暖妇产医院、福州医博肛肠医院、仓山区仓山镇卫生院、仓山区东升街道社区卫生服务中心、龙辰门诊部、谨德口腔门诊
公园:高盖公园园-天照祖殿、盖山山生态公园-休息亭、仓山镇、高盖山生态公园-北广场、高盖公园园-北入口广场、高盖公园园-德隐亭、盖山山生态公园-休息亭、高盖山公园北门、盖山山生态公园-休息亭、盖山山生态公园-休息亭

本宣传资料所涉及的户型仅供示意参考,其装修、家具、陈设等非交付标准,不属于交付范围。本宣传资料不作为销售合同附件,如有调整恕不另行通知,敬请留意最新资料。本项目备案名(推广名)均为榕发·北源云筑,本宣传资料仅为福建榕发置地有限公司对外宣传资料信息,本公司保留对本宣传资料的修改权利,以上所提供资料具体日期为2022年9月,最终解释权在法律允许的范围内归开发商所有。不同户型的面积尺寸,功能布局,空间分割、门窗、管井形态位置等均有不同;相同户型因楼栋、楼层、单元等差别,局部结构、面积等也可能不同,具体以政府部门最终审定的图纸和销售合同为准。
榕发北源云筑
榕发北源云筑售楼处电话:0591-38266485【售楼中心】
榕发北源云筑售楼部电话:0591-38266485【已认证】
〢尊享售楼处1v1销售专业讲解〢
更多团购优惠详情咨询项目林经理:18559901239
2024年福州楼市走势呈"先抑后扬",前三季成交持续萎靡,至四季度受多重政策利好等偶然推动,成交量显著反弹。然而,全年整体楼市表现依旧欠佳,难掩低迷态势。
2024
年 度 总 结 Annual Summary
2024年福州楼市典型现象:01现象一:楼市沉寂,成交创新低2024年五区新增供应量约96万方,尚未触及百万方大关;成交量约为110万方,创下了自2007年以来的新低。
直观地看,2024年市区商品住宅成交不到9000套,基本相当于【成都】一个月的成交量,市场需求的疲软与交易规模的萎缩现象明显。
02现象二:救市政策频施,市场难兴力微2024年购房政策持续放松,在原无限售、不限购的背景下:1、房贷利率多次下调2、首付比例下降且不再区分首套和二套房3、住房套数认定:按照家庭在购买住房所在区的住房套数进行认定4、公积金政策调整
政策:政策汇总!福州2024年购房政策全览解析03现象三:豪宅恒坚,证价攀新高尽管整体交易规模呈现萎缩态势,但高端豪宅仍展现出强劲购买力,成为市场中的亮色。
声明:本文由入驻焦点开放平台的作者撰写,除焦点官方账号外,观点仅代表作者本人,不代表焦点立场。
