榕发北源云筑售楼处电话-首页网站-2025房价-户型配套-榕发北源云筑楼盘详情!
扫描到手机,新闻随时看
扫一扫,用手机看文章
更加方便分享给朋友
福州榕发北源云筑开发商电话☎☎℡TEL;400-8383-583(来电尊享优惠活动)
榕发北源云筑售楼处电话☎☎℡:400-8383-583【已认证】
如有问题欢迎来电咨询,来电即可享受买房优惠!预约来电尊享内部优惠,可预约案场内部销售人员,专业一对一热情服务,让您用专业眼光去买房。
免责声明:将文章内容综合来源于网络、只作分享,版权归原作者所有!!如有侵权,请联系我们,我们第一时间处理

二环内 · 白湖亭万达旁 · 国企耕心筑作
楼盘价格: 参考均价 21000 元/㎡
产权年限: 70年
项目特色: 品牌房企 精致户型 配套成熟 改善好房 小户型
开发商: 福建榕发置地有限公司
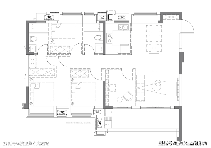
楼盘户型: 3种户型,建面:76-114㎡ 4室2厅2卫 (建面:114)
装修情况: 毛坯
交房时间: 2025年12月
绿化率: 30%
容积率: 2
当期户数: 1433户
物业费: 3元/m²/月

榕发北源云筑总用地面积约76417㎡,可售住宅总建筑面积约15万㎡,分为A、B两个地块开发,容积率2.0,绿地率30%,共规划29栋7-16层的小高层和高层住宅。 【A地块】:总用地面积59671㎡,规划23栋住宅,总高7-16层;以中线为分割线,目前开发的是东侧的A2地块,规划13栋住宅,总高7-16层。 【B地块】:总用地面积16746㎡,规划6栋总高15-16层的高层住宅。

国企榕发 致敬城市脊梁
福建榕发置地有限公司作为集团下属集开发施工一体化的子公司,依托集团平台优势,聚焦房地产开发主业,以市场为先导,以质量为根本,主动作为、锐意创新、精益求精,延续“榕发”匠心品质,致力打造高标准、高品质、高颜值的精品建筑,为建设现代化国际城市贡献力量。

【户型赏析】
76平米:三房两厅一卫,位于连廊中户,三开间朝南,主流布局,北面存在隐私问题,虽然做了三房,不过卧室偏小,这个面积也是目前板块比较极致的刚需产品,对于地缘刚需的吸引力不错。

89平米:三房两厅两卫,连廊中户和端头,三开间朝南,动静分离的主流布局,主要硬伤在于主卫对着床,亮点在于89平米做大面宽的阳台,部分89平还是端头,也算少见。

114平米:四房两厅两卫,位于连廊端头,四开间朝南,大面宽布局,客餐厅南北通透,在连廊端头里面算是比较亮眼。(2)114平米:四房两厅两卫,位于2T2板楼的内端,户型图是手绘,四开间朝南,独梯独户
周边配套:地铁:白湖亭、三叉街地铁站-C口、三叉街、葫芦阵地铁站-B口、三叉街地铁站-B口、葫芦阵、地铁葫芦阵、葫芦阵地铁站-C口、白湖亭地铁站-A口、葫芦阵地铁站-A口
教育设施:福建警察学院、闽文教育(总部)、新搞达教育(仓山校区)、副建船政交通职业学院(南区)、新东风(上三路山亚校区)、康打驾校(首山校区)、福建第二轻工业学校、福建船政交通职业学院(高盖山校区)、闽江学院蔡继琨音乐学院、福建省团校
医院:福州和暖妇产医院、福州医博肛肠医院、仓山区仓山镇卫生院、仓山区东升街道社区卫生服务中心、龙辰门诊部、谨德口腔门诊
公园:高盖公园园-天照祖殿、盖山山生态公园-休息亭、仓山镇、高盖山生态公园-北广场、高盖公园园-北入口广场、高盖公园园-德隐亭、盖山山生态公园-休息亭、高盖山公园北门、盖山山生态公园-休息亭、盖山山生态公园-休息亭

本宣传资料所涉及的户型仅供示意参考,其装修、家具、陈设等非交付标准,不属于交付范围。本宣传资料不作为销售合同附件,如有调整恕不另行通知,敬请留意最新资料。本项目备案名(推广名)均为榕发·北源云筑,本宣传资料仅为福建榕发置地有限公司对外宣传资料信息,本公司保留对本宣传资料的修改权利,以上所提供资料具体日期为2022年9月,最终解释权在法律允许的范围内归开发商所有。不同户型的面积尺寸,功能布局,空间分割、门窗、管井形态位置等均有不同;相同户型因楼栋、楼层、单元等差别,局部结构、面积等也可能不同,具体以政府部门最终审定的图纸和销售合同为准。
福州榕发北源云筑开发商电话☎☎℡TEL;400-8383-583(来电尊享优惠活动)
榕发北源云筑售楼处电话☎☎℡:400-8383-583【已认证】
如有问题欢迎来电咨询,来电即可享受买房优惠!预约来电尊享内部优惠,可预约案场内部销售人员,专业一对一热情服务,让您用专业眼光去买房。
福建省住房和城乡建设厅印发《福建省住宅小区公共收益管理办法》将于3月1日起实施,有效期5年
一、修订背景
为规范住宅小区公共收益管理,保障业主的知情权、监督权及合法权益,福建省住房和城乡建设厅于2022年9月30日印发《福建省住宅小区公共收益管理办法(试行)》。为了让公共收益公示更加及时全面、公示内容更加完整真实、公共收益管理支出更加规范,围绕当前公共收益管理工作中仍然存在的突出问题,依据《中华人民共和国民法典》《物业管理条例》《福建省物业管理条例》等有关规定,在前几年物业公共收益“点题整治”工作基础上,结合我省实际,修订本《办法》。
二、修订主要内容
《办法》包括总则、职责分工、经营和账户管理、使用管理、公示和审计管理、监督检查、附则等共七章三十七条。修订主要内容如下:
01明确公共收益归属
按照《福建省物业管理条例》规定,明确建设单位、物业服务企业或者其他管理人等利用物业服务区域内业主的共有部分所产生的公共收益归全体业主共有。
02加强经营合同(协议)监管
明确物业服务合同未约定的住宅小区共有部分经营事项,应当经业主依法共同决定,并签订合同或者协议,作为物业服务合同的有效组成部分,向当地物业管理主管部门报备。
03简化公共收益使用程序
鼓励由业主委员会(临时物业管理委员会)或者物业服务企业制定住宅小区公共收益年度使用计划,经业主依法表决同意后按计划实施。业主大会可在管理规约中或者临时物业管理委员会可依法征得业主同意后,采取一次性授权的方式,分别明确物业服务企业或者业主委员会使用公共收益的情形、条件、额度和程序,进一步简化公共收益使用程序。
04明确公共收益可用于房屋保险和体检
按照“取之于民、用之于民”的原则,规定经业主大会决定,业主委员会账户的公共收益可以用于开展房屋保险和体检等事项的支出,为探索城镇房屋保险和体检制度拓宽经费渠道。
05加强财务审计
为避免增加公共收益年度审计费用,按照年度公共收益收入金额进行分类施策:对年度公共收益为5万元以下的,经公示无异议的,可不进行审计;对年度公共收益为5万元(含本数)以上的,每年审计1次。同时,鼓励有条件的物业管理主管部门使用财政资金聘请第三方审计机构实行统一审计。
06增加“业账社审”条款
鼓励将“业主委员会管理的公共收益收入、支出由居(村)民委员会监督指导的管理制度”写入管理规约、业主大会议事规则,并制定公共收益财务监管制度,由居(村)民委员会成立业账监管小组,负责对业主委员会的收支情况进行审核和监督。




来源:福建住建
声明:本文由入驻焦点开放平台的作者撰写,除焦点官方账号外,观点仅代表作者本人,不代表焦点立场。
